Дәріс. Тістегеріштік қапастар
Тстегеріштік қапастар бұраушы моменттің бөлінуіне және әмбебап айналдырықтар арқылы орнақтың пішінбіліктеріне айналыс беруге арналған.
Тістегеріштік қапастар дара жетекті орнақтардан басқа барлық илемдеу орнақтарында қолданылады. Дара жеткеті орнақтарда пішінбіліктер тікелей екі қозғалтқыштан айналыс алады (блюминг, слябинг және т.б.).
Барлық тістегеріштік қапастарда астыңғы тістегеріш жеткеті болып жасалған (ора қалыңдықты және сортты үшпішінбілікті орнақтардан басқа).
Илемдік пішінбіліктер диаметрлерінің оларды пайдалану барысында тұрақта болмайтынын ескере отырып (пішінбіліктер қайта жонылады), сортты орнақтарда негізгі параметр есебінде жұмыс пішінбіліктерінің диаметрі емес тістегеріштік қапастардың тістегеріштерінің бастапқы шеңберлерінің диамтерлері алынады. Осының арқасында тістегеріштік қапастардың типтік өлшемдер санын қысқартуға және әртүрлі илемдік орнақтарға тістегеріштерінің диаметрлері бірдей қапастарды қолдануға мүмкіндік туады. Сонымен қатар, осы кезде тістегеріш тістерін қиюға арналған қымбат құралдардың (тісқашауыш, саусақты жонғыш және т.б.) типтік өлшемдер саны едәір қысқарады.
Тістегеріштік қапастың тістегеріштерінің бастапқы диамтерлері орнақ пішінбіліктерінің диаметрлеріне және илемдеу кезіндегі олардың ең үлкен ара қашықтығының шамасына тәуелді. Үстіңгі пішінбілікті көтеру биіктігі илемдеу процесі кезінде өзгеретін болған соң, тістегеріш диаметрін үстіңгі айналдырықтың еңкіштік бұрышының шамасы шақтамалы шамадан (8-100) асып кетпейтіндей қылып таңдайды.
Шағын блюмингтер мен басқа да жаншығыш орнақтар (екіпішінбілікті) үшін тістегеріштердің бастапқы шеңберінің диамтерін d0 мына қатынастан таңдайды:
d0 = (Dн + Dn)/2 + h/(8-10), (11.1)
пішінбіліктер аралығындағы ара қашықтық өзгеруі шамалы (тек қайта жону мен қайта ажарлау есебінен болатын) басқа орнақтар үшін:
, (11.2)
мұндағы Dж – жаңа пішінбіліктер үшін; Dқж – қайта жонылған пішінбіліктер диаметрі (шақтамалы мәнге дейін); h - үстіңгі білікті көтеру биіктігі.
Тістегеріштік қапастарда ортасында жолы жоқ немесе жолы бар шырша тісті тістегріштер қолданылады, ол мынадай жағдайлармен түсіндіріледі:
а) илемдеу барысында тістегеріштердің шеңберлі жылдамдықтары едәуір жоғары (5-20 м/с) және мұндай жағдайда тік тістерді қолдану орынсыз, өйткені олардың жүрісі бірқалыпты емес;
б) қисық тістерді қодану қапас құрылымының күрделіленуіне әкеп соғатын еді, өйткені осьтік жүктемеге қосымша құрылғы қажет болар еді;
в) ортасында жолы бар шырша тістерді (тісті қию кезінде бұрамдықты жонғышты шығаруға арналған) пайдалан тиімді емес, өйткені қалдырылған жол тістегеріштің пайдалы енін кішірейтеді, соның салдарынан беретін бұрау моментінің шекті шамасын да кемітеді. Бірақ ортасында жолы бар тістегріштерді жасау оңайырақ және арзан.
Шырша тістерді қию арнайы қисықтісті тісқашауыш немесе саусақты жонғыш көмегімен жүргізіледі. Шарша тістердің тістегеріштердің бөлгіш диаметрлеріндегі еңкіштік бұрышы β = 300 шамасында алу қабылданған; бүйірлік қимасындағы эвольвенттік пішін бұрышы α = 200. Тістердің өңделуі 2-ші немесе 3-ші дәлдік класымен орындалады.
Тістегеріштік қапастардың беріліс саны бірге тең (i=1), сондықтан тістегеріштердің бастапқы шеңберінің диамтері d0 тістегеріштік қапастың тістегеріштерінің осьаралық ара қашықтығына А тең болады.
Тістер саны z=18-29. Осы шекті мәннен асыруға болмайды, өйткені ол модульдің кішіреюіне , соның салдарынан тістердің беріктігін төмендетуге әкеа соғады. Тістердің шыдамдылығын арттыру үшін олардың ұштарын шынықтырады. Тістердің модульін 8-10 мм төмен алуға болмайды.
Диаметрлері бірдей тістегеріштерді олардың әртүрлі күштер мен бұрау моменттерін беруге арналғандықтарына байланысты (илемдеу орнағының тағайындалған міндетіне байланысты) тістегеріш ендерін әртүрлі қылып жасайды.
Тістегеріштік қапастарды тістегеріштерінің ені бойынша үш топқа бөлуге болады: енсіз, қатынастары В/А =1,2; орташа 1,6-2,0 және енді (кең) 2,5. Аса енді (В/А >2,5) тістегріштерді қолдану дұрыс емес, өйткені бұл кезде тістегеріштік біліктердің майысу шамасы артады да тістердің жүктемені бер жағдайы нашарлайды.
Әдетте, тістегріштерді 45, 40ХН, 60Х2МФ маркалы болаттардан беттік шынықтыру мәні 450-570 НВ қаттылығына дейін жасайды. Бұл болаттар дайындамасының меаникалық қасиеттері (қалыптандырудан кейін): σВ=600-800 МПа, аққыштық шегі σТ=320 МПа; салыстырмалы ұзаруы δ=15%, қаттылығы 170-195НВ.
Тістегеріштік қапастар мен редукторлардың құрылымдары.Тістегеріштік қапастарды ашық типті қылып жасайды (қақпағы ашылмалы). Олар мынадай негізгі элементтерден тұрады: тұғыр, қақпақ, тістегеріштік біліктер мен мойынтірек орналасқан жастықша. Тұғыр мен қақпақ жоғары беріктікті шойыннан (ВЧ-45, СЧ-32 маркалы) құйылып жасалады; тістегеріштер соғылмалы легірленген болаттардан (40ХН маркалы) жасалады. Мойынтіректері – роликті конусты, кейде баббитті сырғанау мойынтірегі (егер мойынтіректің габариттік өлшемдері үлкен болуы себебінен роликті смойынтіректерді қолдану мүмкін болмаған жағдайда). Мойынтіректерге және тісті ілініске орталықтандырылған майлау станциясынан сұйық май үздіксіз беріледі. Тістегеріштер мен мойынтіректер қысыммен берілген майдың ағып кетпеуін қамтамасыз ететін қымтағыштармен қамтылуы керек.
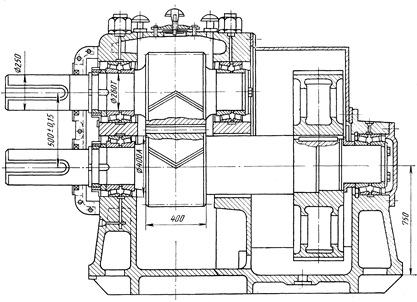
Мысал ретінде 2500 орнағының тістегеріштік қапасының сипаттамасын қарастырамыз.
А=500мм, В=1200мм, β=300; z=21, ms=24, жетекті біліктің максимальды бұраушы моменті 400 кНм, мойынтіректер мен тісті ілініске П-28 (брайтсток) сұйық майы орталықтандырылған жүйемен беріледі. Тұғыр мен қақпақ СЧ-32 маркалы сұр шойыннан, жастықшалар 35Л маркалы болаттан құйылып жасалған. Тістегеріштік біліктер 60Х2МФ болатынан жасалған. Шырша тісті қиюды жеңілдету үшін оларды ортасында жолы бар қылып жасайды.

Сурет 11.1 - 2500 орнағының жұмыс пішінбіліктерін жетекке келтіруге арналған тістегеріштік қапас
Мойынтіректерден майдың ағып кетпеуі мақсатында мойыншалардың ұштарында май лақтырғыш сақиналар жасалған.
Егер пішінбіліктердің жетегіне таңдалып алынған электрқозғалтқыштың айналу саны (nқ) пішінбіліктердің айналу санынан (nпб) едәуір артық болса, онда орнақтың басты тізбегіне бәсеңдеткіш редуктор қойылады. Керісінше, егер nқ<nпб болса, онда үдеткіш редуктор қолданылады. Көпшілік жағдайда i < 4, ал қуат шамасы аз болғанда редукторды тістегеріштік қапаспен біріктіріп, бір трқылы етіп жасайды.
Мұндай аралас тістегеріштік қапас-редукторлар көппішінбілікті және шағын төртпішінбілікті орнақтарды қолданылады.
Қуаттылығы жоғары электрқозғалтқышпен жабдықталған жұмыс қапастарында егер nқ > nпб болса жеке орналасқан редукторлар қолданылады. Мұндай редукторларды ауыр машина жасау зауыттарында нақты қолданылатын онаққа арнап,жеке жобамен жасайды.
Мұндай редукорлардың типі цилиндрлі екіс атылы, осьаралық ара қашықтығы 4000 мм және одан жоғары, берілістік қатынасы iε=15 және одан жоғары.

Сурет 11.2 - Жаттықтыру 2500 орнағының аралас тістегеріштік қапас-редукторы
Редуктордың түбі мен қақпағы пісіріліп жасалған, майлануы сұйық орталықтандырылған, редуктор массасы 150 тоннаға дейін.
Осьаралық ара қашықтығы А<2500 мм редукторларды біртұтас құйылған болат дөңгелектермен жасап шығарады.

Сурет 11.3 - Цилиндрлі тістегерішті екіс сатылы редуктор
Тілкемді суықтай илемдеуге арналған көппішінбілікті (12 және 20 пішінбілікті) илемдік қапастарда диаметрлері шағын жұмыстық пішінбіліктер емес, аралық қатардағы пішінбіліктер жетекті болып табылады. Осыған байланысты тістегеріштік біліктердің құрылым өзіне тән ерекшеліктерімен сипатталады.
Тістегеріштік қапас-редуктор 20-пішінбілікті орнақтың екі аралық қатарға орналасқан шеткі төрт пішінбілігін жетекке келтіреді.
Жетекті болып астыңғы тістегеріштік білік жасалған, ал үстіңгі тістегеріш астыңғы тістегерішпен жұпталып айналысқа түседі. Астыңғы әрбір тістегеріш жұбының беріліс саны i=0,5; Z1=50; Z2 =25; mS = 12; mn =11,88.

Сурет 11.4 - 20-пішінбілікті 1200 орнағының аралас тістегеріштік қапас-редукторы
Астыңғы тістегеріш тізбектей орналасқан қуаттылығы 2 · 1050 = 2100 кВт (n=190-415 айн/мин.) екі электрқозғалтқышпен жетекке келтіріледі.
Әдебиеттер:нег. 1 [115-124], 2 [126-138], 3 [117-128]; қос. 2 [129-145].
Бақылау сұрақтары:
1. Тістегеріштік қапастардың атқаратын міндеті және негізгі типтеріне қысқаша сипаттама.
2. Тістегеріштік қапастарды аударылуға есептеу ерекшеліктері неде?
3. Илемдік орнақтардың редукторлары, оларды қолдану ерекшеліктері қандай?
4. Тістегеріштік қапас-редуктордың құрылымдық ерекшелігі.
5. Тістегеріштік қапас тісті білігінде не үшін шыршатіс пайдаланылады?
Дата добавления: 2015-08-26; просмотров: 1422;
