Определение снеговой нагрузки по ТСН 20-301-97
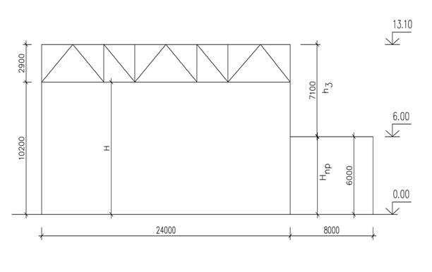
Исходные данные: Место строительства – г. Якутск; длина здания а = 60 м; местность – тип В. Пролет основного здания – 24 м; пролет пристройки – 8 м; высота основного здания – 13,1 м; высота пристройки – 6 м; шаг рам – 6 м.
Расчетное значение снеговой нагрузки S на горизонтальную проекцию покрытия следует определять по формуле S = μ Сt∙ Cw∙ Sg.
По Приложению 1 [2] для г. Якутска Sg = 0,85 кПа.
По схеме 1 Приложения 2 [2] при α ≤ 250 μ = 1; по картам 1 и 2 Приложения 3 [2] находим для г. Якутск среднюю скорость ветра v = 2 м/с и среднюю месячную температуру воздуха в январе t = -400С.
Термический коэффициент Сt∙ для утепленных зданий следует принимать равным 1 (см. п.2.6.б).
В соответствии с п. 2.7. коэффициент, учитывающий снос снега ветром следует определять по формуле Cw = Cwv∙ Cwt, где Сwv определяется по п. 2.8; Сwt – по п. 2.9.
А. Основное здание.
Коэффициент Cwv, учитывающий скорость ветра, для схемы 1 с уклонами покрытий до 12% однопролетных зданий, проектируемых в районах со средней скоростью ветра v ≥ 2 м/с, следует определять по формуле

где b0 – ширина здания, но не более 100 м; в нашем случае b0 = 24 м;
k - коэффициент, учитывающий изменение ветрового давления по высоте здания, определяется по табл. 1. Для типа местности В k5 = 0,5, k10 =
= 0,65 и k20 = 0,85; на отметке 13,1 м по интерполяции получим k13,1= 0,712.
Тогда



Итак, расчетная снеговая нагрузка на покрытие основного здания

Погонная распределенная снеговая нагрузка на раму каркаса основного здания
ps = S∙ B = 0,632∙ 6 ≈ 3,8 кН/м.
Б. Пристройка.
В соответствии со схемой 5 Приложения 2 коэффициент μ2 следует принимать равным
, но не более 6.
Здесь h = 13,1 – 6 = 7,1 м < 8 м; l1 = 24 м; l2 = 8 м.
m1 = 1,1 - Cw = 1,1 – 0,743 = 0,357 >0,1.
m2 = 1,1 - Cw*.
Для определения Cw* необходимо найти коэффициент, учитывающий изменение ветрового давления на высоте 6 м; по линейной интерполяции получим k6 = 0,53.
Cwv* = (1,2 – 0,1∙ 2∙
)∙ (0,8 + 0,002∙ 8) = 0,86;
Cw* = 0,86∙ 0,85 = 0,73;
m2 = 1,1 – 0,73 = 0,37.
Тогда μ2 = 1 + 1 /7,1∙ (0,357∙24 + 0,37∙ 8) = 2,62 < 6.
Так как μ3 = 1 - m2 = 1 – 0,37 = 0,63; 3h / Sg = 3∙ 7,1 / 0,85 = 25,1 > μ2 = =2,62, то зона повышенных снегоотложений составит b = 2h = 2∙ 7,1 = 14,2 м < 16м. Но эта ширина превышает пролет пристройки.
Тогда значение коэффициента μ4 на крайнем участке пристройки находится по линейной интерполяции
μ4 = μ3 + (μ2 - μ3)∙ (b – l2) / b = 0,63 + (2,62 – 0,63)∙ (14,2 – 8) / 14,2 ≈ 1,5.
Расчетное значение снеговой нагрузки на пристройке у стены основного здания
ps2 = μ2∙ Сt∙ Cw∙ Sg∙ B = 2,62∙ 1,0∙ 0,73∙ 0,85∙ 6 = 9,75 кН/м.
Здесь Cw = Cwv*∙ Cwt = 0,73∙ 1,0 = 0,73 (Cwt = 1 для схемы 5).
Расчетное значение снеговой нагрузки на краю пристройки
ps3 = μ4∙ Сt∙ Cw∙ Sg∙ B = 1,5∙ 1,0∙ 0,73∙ 0,85∙6 = 5,58 кН/м.


Рис. 2.2 Схема распределения снеговой нагрузки
Дата добавления: 2015-07-18; просмотров: 1090;
