Распределение количеств шлака и золы
| Характеристика топки | Выход шлака, % от общего количества шлака и золы | Количество золы, оседающей в газо-ходах котла, % от общего количества шлака и золы | Количество золы, выносимой дымовыми газами из парогенератора, % от общего количества шлака и золы |
| Слоевое сжигание топлива | 5-10 | 10-15 | |
| Пылеугольное сжигание топлива с сухим шлакоудалением | 15-25 | 10-15 | 60-75 |
| Пылеугольное сжигание топлива с жидким шлакоудалением | 40-55 | 5-10 | 35-55 |
В зависимости от вида сжигаемого топлива плотность шлака составляет 2,2-2,6 т/м3 , а золы – 2,0-2,5 т/м3.
Более 50 % частиц шлака имеют размеры более 3 мм. Основная масса золы (до 85 %) состоит из частиц размером 0,01-0,5 мм.
Для удаления шлака и золы из топок, золовых бункеров котлов и золоуловителей и далее из помещения на золоотвал применяются механическая, пневматическая и гидравлическая системы шлакозолоудаления.
Механическая система шлакозолоудаления
При механической системе шлакозолоудаления (рис. 79) выгрузка шлака из бункеров осуществляется скребковыми транспортерами или шнеками, а золы – клапанами-мигалками или вращающимися лопастными затворами.
Шлак и зола сбрасываются в приемный канал, расположенный в золовом помещении, и далее с помощью скрепера, горизонтально-вертикального подъемника или другихмеханизмов подаются в сборный бункер, находящийся за пределами котлов. Транспорт шлака и золы на золоотвал или на завод для переработки осуществляется автомашинами или железнодорожными вагонами.

Рис.79. Схема шлакозолоудаления со скрепером:
1 – бункер шлака парогенератора; 2 – скреперный канал;
3 – лебедка; 4 – натяжной трос; 5 – ковш; 6 – эстакада;
7 – сборный бункер для шлака и золы
Механические системы шлакозолоудаления не требуют больших затрат электроэнергии и воды, которые составляют 2-3 кВт∙ч/т и 0,2- 0,5 м3/т, однако не обеспечивают удаления больших масс шлака и золы и не решают вопроса внешнего их транспорта. Вследствие этого механические системы шлакозолоудаления применяются только для котельных установок малой мощности.
Пневматическая система шлакозолоудаления
Пневматический транспорт шлака и золы основан на способности потока газов при достаточной скорости перемещать сыпучие материалы.
Пневмошлакозолоудаление может быть осуществлено по нагнетательной и всасывающей схемам. В первом случае система находится под давлением, во втором — под разрежением. Применяются обычно системы, осуществляемые по всасывающей схеме, при которых в качестве транспортирующего агента используется воздух, и вся система находится под разрежением, создаваемым паровыми эжекторами или вакуум-насосами.
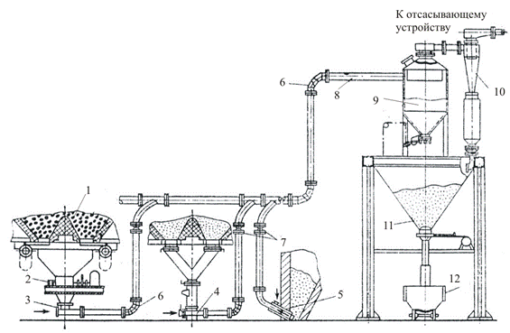
На рис. 80 показана схема пневматической системы шлакозоло-удаления, работающей под разрежением, создаваемым паровыми эжекторами.
Шлак после измельчения до размеров меньше 35 мм в валковых дробилках, установленных под каждым шлаковым бункером, и зола из золовых бункеров поступают во всасывающие насадки, подхватываются воздухом, подаваемым через насадки в систему, и транспортируются по трубопроводам в циклон, где происходит отделение золы и шлака от воздуха. Из циклона зола и шлак поступают в сборный бункер и далее в железнодорожные вагоны или автомашины, которыми вывозятся на золоотвал или для переработки. Воздух из циклона отсасывается через пылеуловитель паровыми эжекторами и вместе с паром сбрасывается в дымовую трубу.

Рис. 80. Схема пневматического шлакозолоудаления:
1 – шлаковый бункер; 2 – шлакодробилка; 3 – насадка для приема
шлака; 4 – насадка для приема золы; 5 – телескопиическая
насадка; 6 – сварное колено; 7 – запорный кран; 8 – шлакозолопровод;
9 – осадительная камера; 10 – циклон; 11 – бункер; 12 – вагон
Концентрация золы и шлака, взвешенных в воздухе, не должна превышать 4—7 кг/м3. Диаметр золопроводов обычно выбирается 90-120 мм. Скорость потока при транспорте шлакозоловой смеси должна быть более 25 м/с. При транспорте одной золы скорость принимается не менее 12 м/с, при этом разрежение, создаваемое эжекторами или вакуум-насосами, составляет 30-40 кПа. Расход пара эжекторами 0,8-1 кг/кг транспортируемой массы шлака и золы, а расход энергии на дробление шлака 0,8 кВт∙ч/т. Транспорт шлака и золы может производиться на расстояние до 200 м при подъеме их до 30 м.
Достоинствами систем пневмошлакозолоудаления являются простота устройства и обслуживания, возможность непосредственного использования получаемых в сухом виде шлака и золы для различных целей, а также отсутствие загрязненных сточных вод. Недостатками системы являются быстрый износ шлакозолопроводов, а также ограниченный радиус действия, что определяет необходимость дополнительного применения внешнего колесного транспорта.
Пневмошлакозолоудаление применяется для парогенераторных установок малой производительности при нецелесообразности устройства гидрозолоудаления, а также в случае необходимости получения сухого шлака и золы по условиям их дальнейшего использования. В парогенераторных установках большой производительности пневматический транспорт золы применяется в сочетании с гидрозолоудалением.
Дата добавления: 2015-07-10; просмотров: 1708;
