Каркасные и бескаркасные схемы зданий
Строительная часть проекта предприятий материально-техни-ческого обеспечения (МТО) и технического сервиса (ТС) разрабатывается на основании технического здания, выполненного в технологической части проекта, в которой выбираются все основные размеры и объемно-планировочные решения. Задача строительной части проекта состоит в том, чтобы выбрать наиболее рациональные конструктивные решения по зданию в соответствии со строительными нормами и правилами и серийно выпускаемыми промышленностью железобетонными элементами, металлическими конструкциями и т.д., из которых собираются здания и сооружения.
Размещение складов в многоэтажных зданиях, полуподвальных и подвальных помещениях нецелесообразно, так как не позволяет эффективно использовать объемы складских помещений, современные механизмы и устройства для переработки грузов, средства механизации и автоматизации погрузочно-разгрузочных и складских работ и обеспечить хорошие общие технико-экономические показатели складов.
Многоэтажные складские здания имеют следующие недостатки:
частая сетка колонн (6
6м), препятствующая эффективному размещению стеллажного оборудования;
каждое межэтажное перекрытие отнимает примерно 1м полезного складского здания;
шахты лифтов и лестничные клетки также занимают часть объема складского здания;
многоэтажное здание примерно в 2 раза дороже одноэтажного складского здания такого же объема;
в многоэтажном здании затруднена подача грузов на верхние этажи и в обратном направлении, поскольку лифты как машины циклического действия имеют небольшую производительность.
Таким образом, размещение складов в многоэтажных зданиях не рекомендуется.
Основные элементы конструкций одноэтажных складских зданий: колонны и фундаменты под них, ленточные или балочные фундаменты под стены (железобетонные или металлические), продольные прогоны, плиты покрытия, кровля.
Т а б л и ц а 3.2. Размеры сечений сплошных железобетонных колонн серии
КЭ-01-49 для одноэтажных складских зданий (см. рис. 3.2)
| Шаг колонн | Сечение колонны, мм | При высоте складских зданий Ну, м | ||||||||
| крайних | средних | бескрановых | с кранами | |||||||
| 4,8 | 6,0 | 7,2 | 8,4 | 9,6 | 8,4 | 9,6 | 10,8 | |||
| а1 | ||||||||||
| b1 | ||||||||||
| a2 | ||||||||||
| b2 | ||||||||||
| А1 | ||||||||||
| b1 | ||||||||||
| a2 | ||||||||||
| b2 | ||||||||||
| а1 | ||||||||||
| b1 | ||||||||||
| a2 | ||||||||||
| b2 |
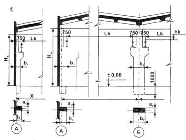
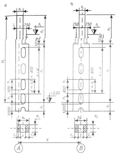
Фундаменты делаются монолитными или сборными железобетонными. Колонны применяются сплошные (табл. 3.2, рис. 3.2) и решетчатые (табл. 3.3, рис. 3.3) и устанавливаются с шагом 6 или 12 м по длине и ширине складского здания.
Т а б л и ц а 3.3. Размеры железобетонных решетчатых колонн для одноэтажных складских зданий
| Размеры | Высота складского здания в зоне хранения Ну, м | ||||
| 10,8 | 12,6 | 14,4 | 16,2 | 18,0 | |
| Отметка подкранового рельса Нр, м | 8,15 | 9,65 | 11,45 | 12,65 | 14,45 |
| Пролет Х, м | 18; 14 | 18; 24;30 | 18; 24;30 | 24; 30 | 24;30 |
| Привязка колонны к разбивочной оси λ, мм | |||||
| Сечения колонн, мм | |||||
| а1 | 1000 (1300) | 1000 (1300) | 1000 (1400) | 1300 (1400) | 1300 (1400) |
| b1 | 400 (500) | 500 (500) | 500 (500) | 500 (600) | 500 (600) |
| с1 | 200 (250) | 200 (250) | 200 (300) | 250 (300) | 250 (300) |
| а2 | (1400) | (1900) | |||
| b2 | (500) | (600) | |||
| с2 | (300) | (350) | |||
| B3 | 380 (600) | 600 (600) | |||
| B4 | (600) | (700) | |||
| Число отверстий в колонне по высоте nо | |||||
| Размеры по высоте, мм | |||||
| h1 | 7000 (6600) | 8500 (8100) | 10300 (9900) | 11500 (11100) | 13300 (12900) |
| h2 | 3800 (4200) | 4100 (4500) | 4100 (4500) | 4700(5100) | 4700 (5100) |
| h3 | |||||
| h4 | 1850 (2000) | 1850 (2000) | 1850 (2000) | 2000 (2000) | |
| h5 | 1850 (1400) | 1850 (1400) | 1850 (1400) | 1400 (800) | 1400 (800) |
П р и м е ч а н и е. Размеры приведены для случая установки колонн с шагом 6 м по длине, в скобках – при установке их с шагом 12 м.


Рис. 3.2. Привязка сплошных железобетонных колонн КЭ-01-49 и стен: а –
в бескрановых; б – в крановых одноэтажных складских зданиях
к продольным разбивочным осям: А и Б (Lк – пролет крана)

Рис. 3.3. Параметры и схемы установки железобетонных решетчатых колонн
серии КЭ-01-52 вдоль: а – крайней; б – средней разбивочных осей складских
зданий
Складские здания разделяются: а) на категории по взрывной и пожарной опасности и степени огнестойкости; б) на классы по Правилам устройства электроустановок (табл.3.4).
Т а б л и ц а 3.4. Категории складов по взрывной и пожарной опасности
| Груз | Категория по взрывной и пожарной опасности по СНиП | Степень огнестойкости | Класс помещения по Правилам устройства электроустановок |
| Жидкости с температурой вспышки паров ниже 28оС и горючие газы, нижний предел взрывоопасности которых 10 % и менее к объему воздуха | А | I | В-Iа |
| Жидкости с температурой вспышки паров свыше 45 оС | Б | II | П-I |
| Горючие газы с высоким нижним пределом взрываемости 15 % и более | Б | II | В-Iб |
| Нитрокраски | А | II | В-Iа |
| Карбид кальция | А | I | В-Iа |
| Кислоты | Д | II | Химически активная среда |
| Щелочи | Д | II | Химически активная среда |
| Масляные лаки | В | II | II-I |
| Синтетический каучук | В | III | II-IIа |
| Резинотехнические изделия | В | III | II-IIа |
| Кабельная продукция | В | III | II-IIа |
| Бумага | В | III | II-IIа |
| Электротехнические изделия и электрооборудование | В | I- II | II-IIа |
| Вспомогательные материалы | В | III | II-IIа |
| Продукция легкой промышленности | В | III | II-IIа |
| КИП и средства автоматики | В | I- II | II-IIа |
| Комплектующие изделия | Д | I- II | Нормальное |
О к о н ч а н и е т а б л . 3.4
| Подшипники | В | I- II | II-IIа |
| Запчасти | В | I- II | II-IIа |
| Абразивы | В | I- II | II-IIа |
| Инструмент | В | I- II | II-IIа |
| Стройматериалы | В | I- II | II-IIа |
| Сантехническое оборудование | Д | I- II | Нормальное |
| Цемент | Д | II | Пыльное |
Все более широкое распространение получают сборные металлические склады.
Склады со стальным каркасом и облегченными ограждающими конструкциями в виде многослойных плит с утеплителем (так называемые типа «сэндвич») изготовляются и строятся двух основных типов – коньковые (рис. 3.4, а) и арочные (рис. 3.4, б).

Рис. 3.4. Складские здания со стальным каркасом и облегченными
многослойными панелями ограждающих конструкций:
а – коньковые; б – арочные
Такие склады имеют ширину 6 – 15 м, длину до 60 м и более и полезную внутреннюю высоту 4 – 8 м. Стоимость этих складов составляет порядка 40 – 80 долл/м2.
Требования к полам и системам вентиляции складов в зависимости от типов и характера хранимых грузов приведены в табл. 3.5.
Т а б л и ц а 3.5. Технологические требования к параметрам воздуха и полам
Дата добавления: 2015-08-21; просмотров: 1731;
