Суда и корабли на подводных крыльях
Первые суда на подводных крыльях (СПК) были построены в 1905 - 1906 гг. Однако широкое применение СПК началось с 50-х годов XX в.
В нашей стране основную роль в создании «флота на крыльях» сыграли разработки конструктора Р. Е. Алексеева. Его суда «Ракета» начали серийно строиться с 1957 г., и до сих пор их можно встретить на реках России.
СПК имеет преимущество над глиссирующими судами в связи с тем, что подъёмная сила, возникающая на подводном крыле, почти вдвое больше, чем на таком же по размерам глиссирующем днище.
|
Для стабильного движения на крыльях необходимо регулирование подъёмной силы при изменении скорости и подъёма судна над поверхностью воды. У этажерочных крыльев (система Э. Форланини, 1905 г.) подъёмная сила автоматически регулируется погружением отдельных крыльев или выходом их на поверхность (рис. 7.6, а). В системе с V-образными полупогруженными крыльями (система Крокко и Рикальдони, 1906 г.) происходит плавное регулирование за счёт наклона крыльев к поверхности воды (рис. 7.6, б). У глубоко погруженных крыльев, характерных для
мореходных судов (рис. 7.6, в), подъёмная сила регулируется изменяемым углом атаки (система К. Гука). У многих судов применяется комбинация крыльев различных типов (рис. 7.8, 7.9).
Рис. 7.6. Типы крыльевых устройств: а – этажерочный; б – V-образный;
в – с глубоко погруженными крыльями
У речных СПК применяются обычно малопогруженные крылья, причём носовая и кормовая системы крыльев нагружены примерно одинаково (рис. 7.7, а, 7.10). В условиях волнения крылья должны быть погружены как можно глубже, чтобы по возможности избежать влияния волн. Поэтому у морских судов обычно применяются крылья или закрылки с регулируемым углом атаки. Наряду с компоновкой типа «тандем», у морских СПК часто применяется компоновка «утка» (реже – самолётная) с основным несущим крылом и передним (задним) стабилизирующим крылом (рис. 7.7, 7.11 - 7.13).
|
Дополнительную мореходность на волнении несущим крыльям придаёт стреловидность (рис. 7.7). Для облегчения движения в переходном режиме и выхода на крылья СПК имеют глиссирующие обводы и поперечные сломы днища – реданы.
Рис. 7.7. Схемы компоновки крыльевых устройств:
а – «тандем»; б – «утка»; в – самолётная
Наибольшее распространение СПК получили в качестве пассажирских линейных судов, а также в военно-морских флотах (ракетные, патрульные, десантные и другие корабли на подводных крыльях (КПК)).
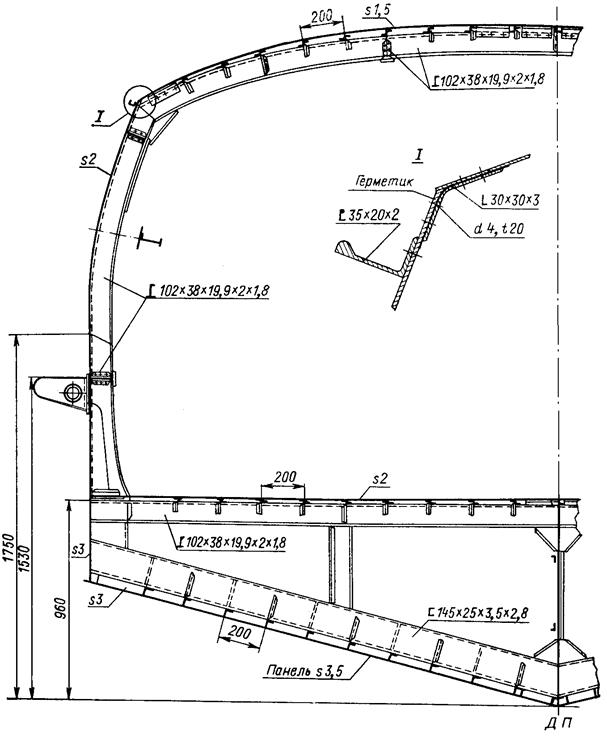
Корпус современных отечественных пассажирских СПК обычно изготавливается в виде сварной конструкции на основе прессованных панелей из алюминиево-магниевого сплава. Система набора – продольная, во многих перекрытиях – навесная. В местах действия повышенных и сосредоточенных нагрузок обшивка дополнительно подкрепляется проставышами – малыми бракетами между обшивкой и рамными балками (рис.7.14, 7.15).
Наибольшие нагрузки испытывают крылья, стойки и конструкции корпуса в районе крепления стоек крыльевых устройств. Кроме того, крыльевые устройства подвержены повышенному износу – не только от коррозии, но и от истирания о взвешенные в воде частицы (особенно у речных судов). Для этих элементов используются высокопрочные нержавеющие стали, в последнее время – угле- и боропластики.

Рис. 7.8. СПК «Олимпия» /26/

Рис. 7.9. СПК РТ10

Рис. 7.10. Паром РТ150

Рис. 7.11. КПК «Пегасус» (три глубокопогруженных крыла катера,
управляемые с помощью электроники, расположены по схеме «утка». Они могут быть подняты из воды при движении в водоизмещающем режиме)

Рис. 7.12. КПК «Tucumcary» (США, 1968 г.) /25/

Рис. 7.13. КПК «BRAS D'OR» (Канада, 1968 г.) /25/

Рис. 7.14. Мидель-шпангоут речного СПК «Восход» /16/

Рис. 7.15. Мидель-шпангоут СПК «Комета» /7/
Дата добавления: 2016-05-25; просмотров: 359;
