Расчет производственных участков
Площади производственных участков РММ определяются по удельной площади, приходящейся на одного производственного рабочего из числа одновременно работающих на участке по формуле
, (8.17)
где f1 – удельная площадь на первого рабочего;
fА– удельная площадь на каждого следующего рабочего;
P – число рабочих на участке в наибольшей смене.
Например для агрегатного участка:
м2
Таблица 8.8 – Площади производственных участков
| Наименование отделений | Удельная площадь, м2 | Число рабочих | Площадь | |
| для первого рабочего f1 | для следующих рабочих fΔ | |||
| Агрегатное | ||||
| Электротехническое | ||||
| Топливной аппаратуры | ||||
| Аккумуляторное | ||||
| Шиномонтажное | ||||
| Вулканизационное | ||||
| Кузнечно-рессорное | ||||
| Сварочное | ||||
| Медницко-радиаторное | ||||
| Слесарно-механические | ||||
| Кабино-арматурное | ||||
| Жестяницкое | ||||
| Обойное | ||||
| Столярное | ||||
| Малярное | ||||
| итого |
Площадь производственного корпуса определяется по формуле:
Fпр.быт= (FСК+Fпр+FАДМ.БЫТ+FУЧ)·kПР, (8.18)
где FСК – площади складов, находящиеся в корпусе(запасных частей и инструмента);
kПР – коэффициент проходов и проездов. kПР =1,2.
Fпр.быт=(91,5+704+313+235,3)·1,2=1612,5 м2.
Компоновка производственного корпуса и построение генплана
Планировка производственного корпуса должна учитывать технологические связи производственных участков, зон и складов, а также противопожарные и санитарные нормы.
Здание производственного корпуса выполняется многопролетным. Ширина пролетов 9, 12, 18 м, реже 24 м. Шаг колонн 6 м или 12 м. Высота здания до нижнего пояса ферм при ширине пролета до 12 м и использовании кран-балок, управляемых с пола 5,4 м или 6,8 м, при ширине пролета 18 м будет равна 7,2 м; при использовании мостовых кранов и пролете 18-24 м будет равна 8,4 м.
Типовые ворота (ширина´высота) 3,0´3,0; 3,6´3,6; 3,6´4,2.
Ширина проездов 3,5-4 м. Ширина проходов 1,0-1,5 м. Санитарными нормами предусмотрено не менее 4,5 м2 площади и не менее 15 м3 объема на одного работающего в производственных помещениях; в административно-хозяйственных помещениях - 3,25 м2.
Площадь производственного корпуса с учетом зон ТО и ремонта, производственных участков, административных, бытовых помещений и складов запасных частей и инструментов составит: Fпрк = 2102,5 м2.
Определим длину корпуса, число и ширину пролетов и шаг колонн.
Принимаем 1 пролет 12 и 1 пролет 18 метров тогда ширина корпуса составит Bпрк=30 м.
Lпрк=Fпрк/Bпрк=1612,5/30=53,75 м. (9.1)
Принимаем шаг колонн 6 и 12 метров, дополнительно предусматриваем колонны для подкрановых путей, площадь корпуса составит: Fпрк = 1620 м2.
Производственный корпус РММ состоит, как правило, из трех основных зон: диагностирования, технического обслуживания и ремонтов.
В зоне диагностирования определяется техническое состояние машин и устанавливается объем работ по ТО и ремонту, а также выполняется заключительный контроль показателей после ТО и ремонта.
Зона ТО состоит из универсальных или специализированных постов, где выполняются контрольно-регулировочные и смазочные работы.
Зона ремонта включает: специализированные или универсальные посты, где производится замена неисправных агрегатов и сборочных единиц; участки по ремонту агрегатов и сборочных единиц; специализированные производственные отделения: кузнечно-рессорный, термический, сварочный, медницко-радиаторный, механический, малярный, обойный, жестяницкий, мойки и очистки деталей и других работ.
Количество постов и участков, а также оборудования рассчитывается по объемам выполняемых работ.


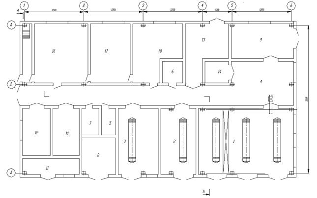
Рисунок 9.1 – План производственного корпуса
При планировке производственного корпуса участки, опасные в пожарном отношении: кузнечный, сварочный, термический, медницкий, малярный, обойный и столярный, - изолируют от остальных помещений огнестойкими стенами и перекрытиями.
Посты, на которых обслуживание машин производится снизу, должны обеспечиваться смотровыми канавами тупикового или проездного типа.
Посты наружной мойки машин оборудуют эстакадами с устройством очистки сточных вод.
При разработке генплана необходимо разместить на отведенном земельном участке все здания, сооружения и службы в такой последовательности, чтобы: обеспечить кратчайшие пути перемещения машин, отсутствие встречных потоков, соблюдение противопожарных норм, а также розу ветров, определяющую направление преобладающих ветров.
Оценка эффективности использования площади земельного участка производится по коэффициенту застройки:
, (9.2)
где Fзд - площадь зданий и крытых сооружений (навесов);
Fу - площадь участка, обычно k3 = 0,3...0,35.
Площадь зданий и крытых сооружений определяется по формуле:
Fзд = Fпр.быт + Fст.п + Fсклад
где Fпр.быт – площадь производственно-бытовых и административных помещений со складом запасных частей;
Fст.с – площадь стоянок машин для сезонного использования;
Fст.п – площадь стоянок для подвижного состава;
Fсклад – площадь под складские помещения.
Fзд = 1620 + 1412,25+ 497,15 = 3529,4 м2
Площадь участка определяется по формуле:
Fуч = Fзд*Kоз*Kпр,
где Kоз – коэффициент озеленения, принимается равным 1,2;
Kпр – Коэффициент проездов, принимается 3..5;
Fуч = 3529,4*1,2*4 = 1691,12 м2, принимаем Fуч =17000 м2.
Тогда коэффициент застройки будет равен:
Кзд = 3529,4/17000 » 0,2
Всю территорию свободную от зданий, сооружений, площадок, стоянок и проездов озеленяют и благоустраивают. Под зеленые насаждения отводится не менее 20% площади участка.
Оценка эффективности использования площади земельного участка производится так же по коэффициенту использования площади kи
, (9.3)
где Fcт – площадь открытых площадок складов и стоянок.
Обычно kи = 0,45 – 0,50.


Рисунок 9.2 – План базы механизации
Дата добавления: 2015-08-08; просмотров: 1749;
