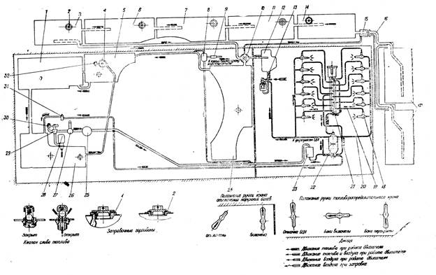
Работа системы питания двигателя топливом.
Перед пуском двигателя после длительной стоянки машины необходимо систему прокачать насосом 28 или ручным топливоподкачивающим насосом 27, для чего включить топливные баки, установив ручку топливораспределительного крана 29 в положение БАКИ ВКЛЮЧЕНЫ, нажать кнопку клапана 31 выпуска воздуха, включить насос БЦН-1 или работать рукояткой насоса РНМ-1.
Топливо из левого носового бака 26 будет последовательно проходить через насос БЦН-1, топливораспределительный кран, насос РНМ-1, фильтр 25 грубой очистки, топливоподкачивающий насос 23, топливный фильтр 22 тонкой очистки и топливный насос 21.
Воздух, попавший в систему, будет вытесняться топливом из полостей топливного фильтра тонкой очистки и насоса НК-12М и через клапан 31 выпуска воздуха вместе с топливом отводиться в левый носовой бак.
При работе двигателя топливоподкачивающий насос 23, забирая топливо из баков, подает его к топливному насосу НК-12М. Насос НК-12М по трубопроводам 19 высокого давления подводит топливо к форсункам 18 в определенных количествах и в соответствии с порядком работы цилиндров двигателя. Основная часть топлива распыляется форсунками в цилиндрах двигателя. Незначительная часть топлива просачивается по зазору между иглой и корпусом распылителя форсунок и по трубопроводу 20 стекает через поплавковый клапан 13 в расширительный бачок 12 топливной системы, откуда отводится в наружные баки.
Топливо при работе двигателя забирается из левого носового бака 26, в котором при этом создается разрежение. Под действием разрежения в этот бак перетекает топливо из правого носового бака 1 и переднего бака-стеллажа 5
Снижение уровня топлива в этих баках приводит также к образованию в них разрежения, при котором начинается поступление топлива из среднего бака-стеллажа, и т. д. По мере выработки топлива баки заполняются атмосферным воздухом, поступающим в топливную систему через поплавковый клапан 13 и расширительный бачок 12. Из расширительного бачка воздух через кран 10 отключения наружных топливных баков и переходник 15 поступает в пятый наружный бак 14 или в левую бочку (при включенных в систему бочках).
При отключенных наружных баках воздух из расширительного бачка подводится через кран отключения наружных баков непосредственно в средний бак-стеллаж. Топливо, попавшее в расширительный бачок при тепловом расширении, вырабатывается в первую очередь.

Схема системы питания топливом:
1 - правый носовой бак; 2 и 4 - заправочные горловины; 3, 6, 7, 11 и 14 - наружные баки; 5 - передний бак-стеллаж; 8 - топливный насос подогревателя; 9 - топливный фильтр подогревателя; 10 - кран отключения наружных баков; 12 - расширительный бачок; 13 - поплавковый клапан; 15 - переходник для подключения бочек; 16 - оборудование для подключения бочек; 17 - дополнительные бочки; 18 - форсунка; 19 - трубопровод высокого давления; 20 - трубопровод объединенного слива топлива из форсунок; 21 - топливный насос НК-12М; 22 - топливный фильтр тонкой очистки; 23 -топливоподкачивающий насос; 24 - средний бак-стеллаж; 25 - топливный фильтр грубой очистки; 26 - левый носовой бак; 27 - ручной топливоподкачивающий насос РНМ-1; 28 - топливоподкачивающий насос БЦН-1; 29 - топливораспределительный кран; 30 - клапан слива топлива; 31 - клапан выпуска воздуха; 32 - датчик топливомера.
Дата добавления: 2015-08-21; просмотров: 2160;
