Квартира и ее элементы. Принципы проектирования.
ЖИЛЫЕ ЗДАНИЯ. ТРЕБОВАНИЯ, КЛАССИФИКАЦИЯ. ОБЪЕМНО-ПЛАНИРОВОЧНЫЕ СХЕМЫ ЖИЛЫХ ЗДАНИЙ. СТРУКТУРА КВАРТИРЫ.
План лекции.
1. Классификация жилых зданий.Общие положения проектирования и основные определения.
2. Объемно-планировочные решения жилых зданий.
3. Квартира и ее элементы. Принципы проектирования.
Население городов, поселков и сельских населенных мест складывается из семей самого различного состава. Каждая семья должна иметь жилище, наиболее полно отвечающее ее быту и потребностям, которые зависят от численного и возрастного ее состава, степени занятости членов семьи на производстве, характера работы и многих других причин.
В связи с разнообразием их потребностей и проектируют различные типы жилых домов с определенным набором разных по площади и составу жилых помещений, необходимое количество которых, их процентное соотношение определяется на основе статистических данных о демографическом составе населения (возраст, пол, род занятий, состав семьи) района строительства.
Классификация жилых зданий. Общие положения проектирования и основные определения.
В зависимости от назначения, этажности, капитальности, а также от материалов конструкций жилые здания подразделяют на виды и классы, каждый из которых имеет свою область применения.
По своему назначению, т.е. по контингенту заселения, для которого они предназначены, и времени проживания жилые здания подразделяют на четыре основные вида:
· квартирные дома для посемейного заселения и постоянного проживания;
· общежития для временного (длительного) проживания на период работы или учебы;
· гостиницы для кратковременного проживания периодически сменяющихся контингентов приезжающих из других населенных мест;
· интернаты для постоянного проживания инвалидов и престарелых.
По этажности жилые дома разделяют на малоэтажные (1 – 3 этажа), средней этажности (4 – 9), повышенной этажности (10 – 16), высотные (более 16 этажей). Для городской застройки наиболее экономичными являются 5-и 9-этажные дома. Однако в связи с тем, что 5-этажные дома строят без лифта, что недостаточно комфортно, там, где это целесообразно, их заменяют 4-этажными. Жилые дома высотой 6, 7 и 8 этажей возводят главным образом при необходимости увязки новых вкраплений в существующую застройку – они менее экономичны, так как лифт в них не имеет полной загрузки. В настоящее время в связи с ростом цен на городскую землю все больше пробивают себе дорогу в жизнь дома повышенной этажности и высотные дома.
Застройку домами малой и средней этажности применяют в поселках и малых городах, а в сельской местности в основном – малоэтажную. Эти дома, как правило, имеют приусадебные участки.
По объемно-планировочной структуре жилые многоквартирные дома подразделяют на секционные, башенные (точечные, состоящие из одной секции), коридорные, галерейные, коридорно-секционные, галерейно-секционные и блокированные.
Для северных, западных, центральных и восточных областей Украины в качестве основного типа применяют секционные и частично башенные дома; для районов с мягким и жарким климатом (южные области и Крым)– галерейные; коридорные жилые дома удобны для размещения небольших одно- и двухкомнатных квартир; блокированные жилые дома применяют в малых городах и городах с жарким климатом, поселках городского типа, частично сельских населенных пунктах.
Все жилые здания по капитальности (сумма требований к долговечности и огнестойкости основных конструктивных элементов зданий, а также к их внутреннему благоустройству) подразделяют на четыре класса, в связи с чем определяется степень их долговечности, огнестойкости конструкций и допустимая этажность (табл.1).
Таблица 6.1. Классы жилых зданий по капитальности
| Класс здания | Требуемая степень | Допустимая этажность, не более | Эксплуатационные требования | |
| долговечности, не ниже | огнестойкости, не ниже | |||
| I | I | I | Не ограничена | Повышенные |
| II | II | II | Средние | |
| III | II | III | Средние | |
| IV | III | Не нормируется | Минимальные |
Основная задача проектирования жилищ – создание наиболее благоприятной жизненной среды обитания, отвечающей функциональным, физиологическим и эстетическим потребностям современных людей.
Функциональные потребности обеспечивают путем создания наиболее удобных условий для всех видов жизнедеятельности в жилище: отдыха, воспитания детей, ведения хозяйства, общения, личных занятий и др.
Физиологические особенности людей обеспечиваются санитарно-гигиеническимим требованиями к физическим качествам жизненной среды жилища: температуре, влажности, чистоте воздуха, естественному освещению, инсоляции, звукоизоляции от внешних и внутренних шумов. Внутренняя среда жилища тесно связана с внешней окружающей средой, в связи с чем санитарно-гигиеничесие требования к жилищам находятся в прямой зависимости от природно-климатических и других местных условий и могут устанавливаться только в связи с ними.
Эстетические потребности людей должны удовлетворяться высоким качеством архитектурно-художественных решений внутренних пространств жилищ, отделки интерьеров, внешней архитектуры зданий и окружающей застройки.
Вместе с тем жилые здания должны отвечать техническим и экономическим требованиям, предъявляемым ко всем типам зданий: прочности, долговечности, обеспечению инженерным оборудованием (водоснабжением, энергоснабжением, канализацией и др.), пожарной безопасности, экономичности возведения и эксплуатации. Все эти разнородные требования следует учитывать в проектировании жилищ комплексно (одновременно), в их взаимосвязи и взаимозависимости от особенностей окружающей среды.
Главные функциональные требования к проектированию жилых зданий следующие:
· создание благоприятных условий расселения в соответствии с демографическим составом населения и современными нормативами обеспечения жилой площадью;
· установление основных функциональных групп помещений жилищ и обеспечение требуемых взаимосвязей между ними в соответствии с протекающими в них жизненными процессами;
· учет особенностей жизненного режима населения в зависимости от вида трудовой деятельности и профессий;
· учет влияния природно-климатических условий на жизненный режим населения.
Создание благоприятных условий расселения основывается на учете данных о демографическом составе населения определенных районов страны, городов, сельских населенных мест, выявляющих процент семей разного количественного состава, а также характеризующих число членов каждой семьи, их возраст, пол, родственные связи. В зависимости от этих демографических данных устанавливают потребность в жилых домах с разным составом жилых и подсобных помещений.
Основным типом жилого дома являются квартирные дома, представляющие собой дома, в которых основным объемно-плнировочным элементом является квартира, предназначенная для заселения одной семьи. Количество квартир в них может быть самым разнообразным и зависит от характера дома и места строительства.
По характеру застройки квартирные жилые дома можно подразделить на два типа: с приквартирными участками, в которых каждая квартира имеет свой земельный участок, и дома с озелененной территорией, предназначенной для общего пользования. Дома с приквартирными участками применяют в основном для сельского и поселкового строительства, в пригородах, частично для застройки в малых городах. Дома без приквартирных участков являются основным видом городской застройки.
К особому типу квартирных домов относятся гостиничные дома, предназначаемые для одиночек и семей, состоящих из 2 – 3 человек, не ведущих в полном объеме домашнего хозяйства. В таких домах квартиры имеют небольшую жилую площадь и сокращенный состав подсобных помещений (кухни-ниши вместо кухни, совмещенные санузлы с душевыми поддонами вместо ванн и т.д.). В них, как правило, предусматривают развитую систему коммунального и бытового обслуживания.
Дома гостиничного типа могут иметь специальное назначение: для молодоженов, престарелых и т.п., что определяет их объемно-планировочную структуру и состав обслуживающих учреждений. Таким образом, они создают повышенные удобства для проживания определенной категории населения и в то же время позволяют повысить экономичность жилищного строительства.
В связи с дальнейшим ростом благосостояния населения и широким развитием в нашей стране культурно-бытового обслуживания появляются и новые, более совершенные формы организации жилища.
Примером нового перспективного типа жилых зданий являются так называемые жилые комплексы или дома с обслуживанием, представляющие собой особую группу многоэтажных жилых домов с различным набором современных квартир.
В систему такой группы композиционно и функционально включается комплекс обслуживающих учреждений, предназначенных для удовлетворения самых разнообразных культурных и бытовых потребностей населения этой группы домов. В таких жилых комплексах квартиры проектируют, как правило, с полным составом помещений.
Для временного (длительного) проживания одиночек или малосемейных предназначены общежития. Обычно общежития имеют специализированные назначения: для учащихся, рабочих, строителей и т.д. Общежития отличаются тем, что основной структурной единицей такого жилого дома является не квартира, а комната, предназначенная для проживания, как правило, от двух до четырех человек.
Для молодых семей, состоящих из супружеских пар, супругов с ребенком или взрослого с ребенком, проектируют особые виды общежитий, в которых каждой семье предоставляют отдельную малометражную квартиру.
Кроме жилых комнат в общежитиях размещают комплекс помещений для разностороннего обслуживания и самообслуживания населения. Разрабатываются также проекты общежитий гостиничного типа с повышенной степенью культурно-бытового обслуживания, приближенного к системе обслуживания населения гостиниц.
Для кратковременного проживания приезжающих на небольшой срок (как правило, от 1 до 30 суток) людей служат гостиницы.
В зависимости от контингента, для которого гостиницы предназначают, их подразделяют на гостиницы: общего типа – для приезжающих в служебные командировки или по личным делам; туристские – для отечественных и зарубежных туристов; курортные – для отдыхающих, а также для автотуристов при мотелях (для кратковременного пребывания) и кемпингах (для отдыха). Помимо этого применяют некоторые специальные виды гостиниц общего типа: для транспортных пассажиров при аэро-, авто-, водных, железнодорожных вокзалах, для спортсменов, ведомственные при промпредприятиях, учреждениях, сельхозпредприятиях.
В зависимости от состава помещений, их площадей, оборудования и степени комфортности гостиницы подразделяют на пять классов. Гостиницы общего типа и туристские могут быть высшего, I, II, III и IV классов, а курортные – не ниже III класса.
Формы жилища меняются, развиваясь вместе с изменением жизни общества. Поэтому общей тенденцией в развитии жилищного строительства в нашей стране является дальнейшее изучение потребностей различных категорий населения и соответствующее совершенствование и дифференциация видов жилых зданий. Так существуют определенные категории людей, которые требуют к себе особого внимания и заботы. Например, одинокие престарелые и дети без родительской опеки, больные и т.п. Эти люди могут проживать в специальных домах-интернатах.
Интернаты являются местом проживания таких категорий людей, которые требуют определенного ухода или присмотра.
Интернаты можно разделить на две группы. Первая – с расширенной сетью медицинского обслуживания, предназначенная для проживания больных и одиноких престарелых людей. Вторая – для воспитания и присмотра детей, которые не имеют родителей. В свою очередь, первая группа жилых домов подразделяется на два типа. Общего назначения (санаторно-пансионатные) для людей, могущих самостоятельно передвигаться и частично себя обслуживать. И больничные – для тех, кто нуждается в постоянном постельном режиме.
В интернатах общего назначения комнаты на 1 – 2 человек (с санитарным узлом) объединяют в группы на 10 человек. Каждую группу обеспечивают кухней, комнатой отдыха и бытовой комнатой. В состав таких интернатов входит также комплекс помещений питания, культурно-бытового и медицинского обслуживания. Их вместимость составляет 100, 200 и 300 мест.
Больничные интернаты имеют комнаты типа палат на 1 – 2 и 4 места с санитарными узлами и объединены в группы типа больничных секций. В этих интернатах более развиты комплекс лечебных помещений, централизованная система питания, несколько меньше состав помещений культурно-бытового обслуживания. Вместимость таких интернатов 50 – 100 человек для малых населенных мест и 300, 400, 500 чел. для городов.
Вторая группа интернатов представляет собой совмещение школьных (учебных) помещений и группу жилых помещений по типу общежития со всем необходимым комплексом обслуживающих помещений.
Объемно-планировочные решения жилых зданий
Объемно-планировочное решение жилого дома разрабатывается на основе функционального решения здания с учетом всех процессов, происходящих в жилище, и взаимосвязей между ними. Это осуществляется на основе зонирования.
В зависимости от характера жизненных процессов, протекающих в помещениях жилища, их подразделяют на две основные функциональные зоны. Первая предназначена для отдыха, сна и, возможно, для занятий (спальни). Вторая для хозяйственно-бытовых процессов, общения, приема гостей, отдыха, т.е. для дневной и вечерней активности (общая комната – столовая-гостиная, кухня, ванная, подсобные помещения).
Первая зона должна быть по возможности удалена от источников шума (кухня, общая комната, передняя), и состоять из не проходных помещений спален. Вторая должна быть с удобной взаимосвязью всех помещений дневной активности и с входом в квартиру.
В зависимости от положения в здании и по отношению к отметке земли различают несколько видов этажей: надземные – при отметке пола помещений не ниже планировочной отметки земли; цокольный – пол помещений расположен ниже планировочной отметки, но не более чем на половину высоты помещения; подвальный – пол загублен более чем на половину высоты помещений; мансардный – помещения расположены в объеме чердака.
Техническое подполье предназначено для прокладки инженерных сетей. При необходимости зонирования санитарно-технических систем в зданиях повышенной этажности устраивают технические этажи, в которых размещают инженерные сети и оборудование.
При определении этажности здания в число этажей включают все надземные этажи, в том числе мансардный и цокольный, если верх его перекрытия находится выше планировочной отметки земли не менее чем на 2м.
При различном количестве этажей в отдельных частях здания или размещении его на участке с большим уклоном этажность определяют отдельно для каждой части здания.
Жилые комнаты в квартирных домах и общежитиях разрешается размещать только в надземных и мансардных этажах, при этом высота этажа от пола до пола должна быть равна 2,9м, а высота жилых помещений от пола до потолка – не менее 2,5м. В особых климатических условиях (подрайоны IА, IБ, IГ, IД, IVА) высота этажа должна быть равна 3,0м, а высота жилых помещений от пола до потолка – не менее 2,7м. Высота коридоров, ведущих в подсобные помещения, должна быть не менее 2,1м.
Высота подвальных, цокольных и технических этажей должна быть от пола до выступающих конструкций или инженерных коммуникаций не менее 1,9м.
В первом, втором и цокольных этажах жилых зданий допускается размещать помещения предприятий торговли, общественного питания, бытового обслуживания, помещения для работы с детьми и подростками. Исключения составляют крупные предприятия торговли и общественного питания и предприятия, работа которых может нарушать нормальную жизнь населения (шум, запахи, испарения и т.д.). Все помещения общественного назначения должны иметь изолированные от жилой части здания входы. Загрузка предприятий торговли и общественного питания товарами и продуктами должна производиться с торца здания, не имеющего окон, или из специальных разгрузочных помещений с подъездом к ним с улицы.
По своей объемно-планировочной структуре наиболее массовыми являются многоквартирные секционные дома, в которых группы квартир расположены поэтажно вокруг одного лестнично-лифтового узла и имеют входы с лестничных площадок или из лифтовых холлов.
Секционные дома приемлемы в любом климатическом районе, удобны для планировки средних по размеру квартир массового типа, осуществляются в простых конструктивных схемах при полной унификации элементов. Секционные дома наиболее экономичны в строительстве и эффективны при обеспечении квартир инженерным благоустройством.
Особенностью объемно-планировочной структуры секционного дома является наличие одного коммуникационного узла (вход, тамбур, лестничная клетка) на группу квартир, входящую в состав секции (или блок-секции).
Секционные дома различают по некоторым типологическим признакам; этажности, протяженности, количеству квартир, ориентации.
Протяженность секционного дома определяется числом составляющих его секций или блок-секций. В зависимости от этажности, протяженности и типа секций колеблется и число квартир в доме.
Жилая секция представляет собой ячейку, состоящую из нескольких квартир, расположенных вокруг лестничной клетки. Секции и блок-секции различаются по расположению в плане здания, количеству составляющих их квартир, ориентации.
По месту расположения в плане здания секции подразделяют на рядовые, торцовые, угловые поворотные, секции-вставки. Основу плана составляют рядовые секции. Секцию могут составлять от двух до восьми квартир. Однако для домов малой и средней этажности применяют секции в две, три и четыре квартиры.
Количество квартир и их планировочное взаиморасположение определяют возможную ориентацию секции по странам света, в связи с чем различают секции меридиональные и широтные. Меридиональные секции имеют ограниченную ориентацию, широтные – свободную и частично ограниченную (см. рис.6.1).

Рис. 6.1 Схемы блок-секций: а) - широтные свободной и частично ограниченной ориентации; б) – меридиональная ограниченной ориентации; 1 – 4 - количество комнат
Двухквартирные секции имеют двустороннюю ориентацию квартир (рис.6.2), что определяет их сквозное проветривание и свободную ориентацию дома в застройке. Поэтому, несмотря на меньшую экономичность, двухквартирные секции широко применяют в южных районах и для двухэтажных секционных домов в разных климатических районах. Двухквартирные секции могут состоять из одинаковых и разных по площади квартир. Как правило, это большие квартиры в 3 – 5 комнат с тем, чтобы ширина корпуса была как можно большей.

Рис. 6.2. Двухквартирная секция.
Расположение кухонь и санитарных узлов во многом определяет планировочную организацию квартиры. Они могут располагаться смежно и раздельно, но так, чтобы санитарные блоки смежных квартир стыковались у межквартирной стены, по обе стороны лестничной клетки или стыковались с квартирами смежных секций. При раздельном размещении кухни и санитарного узла в квартире увеличивается количество стояков в секции, но при этом достигается четкое зонирование в планировке помещений.
Трехквартирные секции экономичнее двухквартирных. Они имеют частично ограниченную ориентацию (ограничивается ориентация одного из фасадов), что обеспечивает им достаточную градостроительную маневренность. В этих секциях, как правило, две квартиры имеют двустороннюю ориентацию и сквозное проветривание и одна, меньшая по площади квартира, – одностороннюю ориентацию (рис.6.3). Планировочная схема такой секции может быть симметричной (с двумя одинаковыми квартирами) и асимметричной (со всеми квартирами, разными по площади и числу комнат).

Рис. 6.3 Трехквартирная секция.
Так как квартиры в трехквартирной секции проектируют небольшими, то обычно кухни и санитарные узлы здесь размещают смежно. Кухни и санузлы в боковых квартирах размещают при входе в квартиру у лестничной клетки или в глубине квартиры. В последнем случае блокируются санузлы смежных секций. В средней квартире кухню и санитарный узел размещают против лестничной клетки, при этом возможна блокировка кухни и санузла со смежной квартирой.
Четырехквартирные секции несколько экономичнее, чем трехквартирные. Эти секции делят на две группы: секции ограниченной ориентации (меридиональные), в которых все квартиры имеют одностороннюю ориентацию, и секции частично ограниченной ориентации (широтные), где две квартиры имеют одностороннюю ориентацию и две – двустороннюю.
Широтные четырехквартирные секции (рис.6.4) по ориентации аналогичны трехквартирным, однако планировка квартир здесь получается несколько хуже. Кроме того, большее количество квартир, чем в трехквартирных секциях, не имеет сквозного проветривания.

Рис.6.4. Четырехквартирные секции (широтная и меридиональная).
Меридиональные четырехквартирные секции с небольшими экономичными квартирами в соответствующих условиях ориентации применялись в массовом жилищном строительстве. Однако в дальнейшем проектировании и строительстве домов малой и средней этажности предпочтение следует отдавать трехквартирным и двухквартирным секциям, как более комфортным.
В состав помещений секционных домов кроме квартир входят обслуживающие и подсобные помещения, характер которых зависят от конкретных условий – места строительства, степени благоустройства и т.п.
В подвале дома могут размещаться хозяйственные кладовые для хранения домашнего инвентаря (колясок, велосипедов, санок, лыж и т.п.), гаражи, кладовые для хранения продуктов (для сельской местности), а в случае временного оборудования плитами, работающими на дровах или угле, - сараи для хранения топлива. Устройство подвала удорожает строительство, поэтому подсобные помещения не следует делать под каждой секцией, а объединить в одном месте.
Вход в жилой дом секционной структуры осуществляется через лестничную клетку. При входе в лестничную клетку необходимо устройство тамбура глубиной не менее 1,2 м, двери которого должны открываться наружу. Тамбур размещают под промежуточной площадкой лестницы (двух маршевой). Его высота должна быть не менее 2 м, что при высоте этажа 2,8 м определяет отметку пола первого этажа над тротуаром или отмосткой на уровне не менее 0,85 м (рис.6.5).

Рис. 6.5. Решение входа в жилой дом без лифта: а) – непосредственно через лестницу; б) – через вестибюль.
Лестницы являются важным элементом секционного дома. Расположение лестниц, их форма, размеры находятся в зависимости от общей планировочной структуры секции. Правильное решение лестниц создает соответствующие удобства, удовлетворяет требованиям пожарной безопасности, влияет на экономику строительства и эксплуатации здания.
По своей структуре лестницы жилого дома малой и средней этажности могут быть одно-, двух- и трех маршевыми и должны размещаться в лестничной клетке. В IV и IIIБ климатических районах допускается устройство наружных открытых лестниц из несгораемых материалов. Выход наружу из подвального и цокольного этажей не должен сообщаться с лестничной клеткой жилой части здания (кроме двухэтажного).
Лестничные клетки должны иметь естественное освещение через окна в наружных стенах. В двух-и трехэтажных домах I и II степеней огнестойкости допускается проектировать освещение естественным светом через световые фонари в покрытиях размером не менее 1,5 × 2,5м. При этом необходимо делать просвет между маршами (при двух маршевой лестнице) не менее 0,7м. Освещение лестницы верхним светом обычно делают при ее расположении в центре секции.
Уклон и ширина лестницы определяют степень ее удобства. Нормами определяется наибольший уклон и наименьшая ширина маршей (табл.2). Число подъемов в одном марше должно быть не менее 3 и не более 18. Ширину лестничных площадок следует делать не менее ширины марша и не менее 1,2м.
Таблица 6.2. Наименьшая допускаемая ширина лестничных маршей и их наибольший уклон
| Назначение маршей | Наименьшая ширина | Наибольший уклон |
| Марши лестниц, ведущих в жилые этажи: | ||
| двухэтажных | 1,05 | 1 : 1,5 |
| трехэтажных и более | 1,05 | 1 : 1,75 |
| Марши лестниц, ведущих в подвальные и цокольные этажи | 0,9 | 1 : 1,25 |
Принципиальные изменения вносятся в планировку 2 – 4-этажных секционных домов при застройке высокой плотности. В этом случае повышение плотности достигается благодаря оригинальной блокировке домов с применением замкнутых и полузамкнутых двориков, галерей для южных районов.
Лестницы в таких домах могут быть расположены в центре секции и освещаться верхним светом через фонарь или боковым светом через внутренний дворик (рис.6.6). Это способствует возможности значительного уширения корпуса, что делает мало- и средне этажную застройку вполне конкурентоспособной по экономическим показателям застройке более высокой этажности. Такая застройка рентабельна для оснащения домов всеми видами санитарно-технического оборудования. В ней можно создать городской комфорт проживания и одновременно приблизить к уровню земли, природе, что так необходимо для городского человека.

Рис.6.6. Пример дома с высокой плотностью застройки с лестницами, освещаемыми через внутренние дворики.
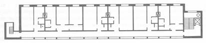
Есть еще один тип домов, который характеризуется развитыми горизонтальными коммуникациями – коридорами, связанными с вертикальными коммуникациями, т.е. с лестницами и лифтами. Такие дома называются коридорными домами, в которых квартиры расположены по обеим сторонам коридора.
Положительные качества коридорных жилых домов по сравнению с секционными следующие: более экономичны, т.к. в них меньше лестничных клеток и лифтов; экономичное использование вертикальных коммуникаций; возможность применения широких корпусов (порядка 14-15 м); уменьшение числа входов в здание (рис.6.7). Все это позволяет использовать дома данного типа в некоторых экстремальных районах, где необходима защита жилищ от воздействия пылевых бурь (в полупустынях и пустынях), от сильных ветров со снежными метелями. Исходя из условий целесообразного использования коридоров, в домах этого типа целесообразно размещать одно- или двухкомнатные квартиры.

Рис.6.7. Архитектурно-планировочная структура жилого дома коридорного типа.
К недостаткам этих домов относятся односторонняя ориентация квартир, снижающая градостроительную маневренность при застройке участка этими домами (возможна только меридиональная или близкая к ней ориентация), меньшая изолированность квартир, чем в секционных домах, отсутствие сквозного проветривания, в связи с чем их применение возможно только в районах, где такое проветривание необязательно или недопустимо. Проветривание квартир в домах этого типа возможно только через окна в торцах коридоров с естественным освещением, а также через световые разрывы.
Для южных районов (IV и частично III климатические районы) довольно удобными являются галерейные дома, квартиры в которых размещают вдоль поэтажных открытых или застекленных галерей, связанных по этажам лестницами. Галерея представляет собой, как правило, неотапливаемое открытое или застекленное горизонтальное коммуникационное помещение.
Галерейная структура обусловливает хорошие санитарно-гигиенические качества квартир, которые получают двустороннюю ориентацию и сквозное проветривание (рис.6.8). Галерея, являясь средством горизонтальной коммуникации, одновременно защищает квартиры от перегрева, что в южных районах очень важно. Однако такие дома нецелесообразно располагать в северных районах, поскольку в них очень большая относительная площадь наружных ограждений, в связи с чем наблюдаются значительные теплопотери. К тому же в условиях снежных заносов эксплуатация галерей затруднительна.

Рис.6.8. Архитектурно-планировочная структура жилого дома галерейного типа.
Комнаты квартир в галерейных домах следует располагать так, чтобы в сторону галереи, как наиболее шумной части дома, были обращены нежилые помещения (передняя, кухня, санитарные узлы), а спальные комнаты – в противоположную сторону дома. Вообще квартиры в галерейном доме следует развивать в глубину. Это способствует уширению корпуса и сокращению конструктивного шага поперечных несущих стен, что делает дом более экономичным.
Обычно квартиры в таких домах небольшие, при необходимости получить большие квартиры их располагают в двух уровнях. Такая планировка позволяет хорошо изолировать от галереи спальные комнаты, которые размещают в верхнем уровне. При этом галереи располагают через этаж на уровне входов в квартиры, а квартирные этажи сообщаются по внутренней лестнице.
Таким образом, в четырехэтажном доме размещают по высоте два ряда квартир, а в пятиэтажном, кроме того, в первом этаже устраивают небольшие квартиры в одном уровне.
Дома в 3 – 5 этажей, связанные галереями, при определенной их компоновке образуют жилые комплексы плотной застройки, экономически целесообразной и отвечающей бытовому укладу и архитектурным традициям южных городов.
Для небольших городов или поселков городского типа часто используются дома блокированного типа, которые представляют собой несколько примыкающих друг к другу изолированных блоков-квартир с отдельным выходом из каждой квартиры на приквартирный участок.
Количество блоков, входящих в состав дома, зависит от различных условий (характер участка, рельеф местности, степень огнестойкости дома и т.п.) и может включать от 4 до 16 квартир при линейной блокировке, а при сложной – значительно больше.
Блокированные дома, как правило, строят одно-и двухэтажными. В двухэтажных домах квартиры располагают в двух уровнях (коттеджный тип) или в одном уровне на каждом этаже (поэтажное размещение). Могут быть варианты со смещением на половину этажа.
Для повышения плотности застройки можно применять и трехэтажные блокированные дома. В нашей стране такие дома за последнее время начали получать некоторое распространение, так как в определенных условиях сочетают в себе экономический, социальный и эстетический эффекты.
Блокированный дом, сохраняя все удобства одно-и двухквартирных домов, значительно экономичней их. Это объясняется сокращением периметра наружных стен и резким повышением плотности застройки. Экономичность блокированного дома повышается с увеличением количества квартир в доме.
Блокировка квартир может быть осуществлена разными способами (рис.6.9). Простейшим и наиболее распространенным способом является примыкание блоков-квартир боковыми стенами и образование дома простой прямоугольной формы. В таком доме все квартиры имеют двустороннюю ориентацию и сквозное проветривание.

Рис.6.9. Примеры сопряжений квартир в домах блокированного типа: 1 – план дома; 2 – приквартирный участок.
Такую же простую конфигурацию дома и еще большую плотность застройки дает двухрядная блокировка. Однако этот прием при большом количестве блоков-квартир в доме ухудшает санитарно-гигиенические качества квартир, которые получают одностороннюю ориентацию и лишаются сквозного проветривания. Поэтому двухрядную блокировку применяют, как правило, в четырехквартирных домах, в которых квартиры получают двустороннюю ориентацию и угловое проветривание. Такую блокировку называют крестообразной. В некоторых случаях в целях лучшей изоляции отдельных блоков или улучшения условий ориентации применяют блокировку со сдвигом блоков относительно друг друга.
В районах с жарким климатом для большей защиты помещений от перегрева применяют блокировку из Г-образных в плане блоков, образующих полуоткрытые или замкнутые внутренние дворики. Возможна блокировка таких квартир и вплотную. В случае крутого рельефа местности блокировку производят со сдвижкой блоков по вертикали. В некоторых случаях сдвиг по вертикали совмещается со сдвигом блоков и по горизонтали, что создает богатую пространственную композицию, органически связанную с рельефом местности. Различным сочетанием этих приемов можно создать сложные интересные композиции застройки.
Особенность планировки квартир блокированных домов – обязательное наличие 2-х входов. Это объясняется тем, что участок разрезан домом на 2 изолированные части – одну, расположенную перед домом, и вторую – за ним, на которую можно выйти только через квартиру. Кроме того, в отличие от индивидуального, квартиры блокированного дома имеют ограниченный световой фронт (зависит от характера блокировки), что определяет расположение помещений. При блокировке квартир санитарные узлы должны быть расположены смежно, для чего блоки в большинстве случаев размещают зеркально повернутыми друг к другу.
Квартира и ее элементы. Принципы проектирования.
Квартира представляет собой основную ячейку, из которой компонуются все жилые дома, как малые, так и самые большие. От того, насколько удобны и рациональны по своей планировочной структуре квартиры, зависит общее качество жилого дома.
Одним из основных условий правильной организации квартиры является ее соответствие потребностям семьи, удовлетворение протекающим в ней жизненным процессам: отдых, занятия, приготовление пищи и т.д. При этом комфортность проживания в квартире зависит не только от правильного определения необходимого состава помещений, но также от их размеров, характера взаимосвязи, эстетических качеств.
Дата добавления: 2015-08-14; просмотров: 14772;
