Устройство и принцип действия центробежного насоса
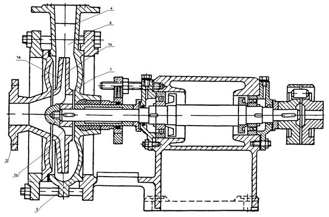
Схема центробежного насоса представлена на рисунке 3.1.

Рисунок 3.1
Рабочее колесо 1 состоит из заднего диска 1а, который установлен на валу, и переднего 1в, скрепленных между собой лопатками 1с. Рабочее колесо находится внутри корпуса 3, который в периферийной части имеет спиральную камеру 5 для отвода жидкости в напорный патрубок 4. Жидкость вводится в рабочую камеру через всасывающий патрубок 2.
Принцип действия центробежного насоса основан на использовании центробежных сил, действующих на жидкость во вращающихся межлопаточных каналах, при котором происходит преобразование механической энергии рабочего колеса в гидравлическую энергию потока жидкости.
Напорный патрубок также служит и для преобразования кинетической энергии потока в потенциальную (давление), т.к. напорный патрубок выполняют в виде диффузора.
К числу основных деталей центробежных насосов относятся рабочее колесо, корпус, отводы (направляющий аппарат), вал, подшипники и сальники. Рабочие колеса бывают закрытые (а), открытые (в), с односторонним (а, в) и двусторонним входом жидкости (с), (рисунок 3.2).

а в с
Рисунок 3.2
Открытые рабочие колеса в отличие от закрытых не имеют переднего диска. Рабочее колесо с двусторонним входом жидкости имеет два передних диска и один задний с втулкой для посадки на вал.
Подводящие и отводящие жидкость устройства, как правило, выполняют в монолите с корпусом насоса.
Корпус насоса может иметь горизонтальный (осевой) разъем, в котором плоскость разъема проходит через ось насоса, или торцевой разъем, в котором плоскость разъема перпендикулярна оси насоса.
Подводящее устройство, заканчивающееся входным патрубком, предназначено для подвода жидкости во всасывающую область рабочего колеса с наименьшими гидравлическими потерями и асимметричным распределением скоростей по живому сечению входного отверстия.
Отводящее устройство служит для сбора и отвода жидкости в напорный трубопровод или в следующее рабочее колесо, а также для частичного превращения кинетической энергии в потенциальную (давление) за счет торможения потока. Поэтому все отводы выполняют в виде диффузорных каналов (спиральных или лопаточных).
Различают спиральный, полуспиральный, двухзавитковый и кольцевой отводы, а также направляющий аппарат с лопатками.
Спиральный отвод - это постепенно расширяющийся канал, охватывающий рабочее колесо (рисунок 3.3).
Кольцевой отвод (рисунок 3.4) имеет постоянное сечение. Такие отводы применяют главным образом в малых насосах и насосах для перекачки загрязненных жидкостей. В кольцевом отводе гидравлические потери больше, чем в спиральном.
Полуспиральный отвод - это кольцевой отвод, переходящий в спиральный.
Двухзавитковый отвод состоит из двух спиральных симметрично расположенных каналов и одного канала постоянного сечения.

Рисунок 3.3 Рисунок 3.4
Направляющий аппарат устанавливается внутри корпуса насоса (рисунок 3.5) и представляет собой два диска, между которыми устанавливаются лопатки 2. Лопатки образуют ряд диффузорных каналов для сбора жидкости, выходящей из рабочего колеса 3. Далее поток жидкости поступает в межлопаточные каналы 4, по которым жидкость направляется на вход в следующее рабочее колесо или в напорный патрубок. Направляющие аппараты более сложны по устройству, чем спиральные и кольцевые отводы, они увеличивают гидравлические потери, их применяют в многоступенчатых насосов.

Рисунок 3.5
В корпусе насоса в местах выхода вала устанавливаются концевые уплотнения, которые могут быть разнообразных конструкций: сальниковые, торцовые, плавающие и др.
Вал насоса является весьма ответственной деталью, на нем крепятся рабочие колеса, устанавливаются защитные втулки в местах размещения сальниковых уплотнений, установочные гайки крепления колес.
Дата добавления: 2015-07-10; просмотров: 943;
