Сжигание жидкого топлива
При организации сжигания жидкого топлива следует учитывать, что горение его происходит в основном в парогазовой фазе. Последнее связано с тем, что температура кипения жидкого топлива значительно ниже температуры его воспламенения. Поэтому скорость сгорания его будет определяться скоростью испарения с поверхности, а эта поверхность многократно увеличивается при распыливании жидкого топлива на отдельные капли, для чего и применяют специальные устройства – форсунки.
В зависимости от способа распыливания мазута форсунки бывают:
- механические (за счет давления мазута);
- паровые (за счет давления паровой струи);
- паромеханические;
- воздушные высоконапорные или низконапорные;
- ротационные (центробежные).
Совершенство конструкции любой форсунки оценивается по тонкости и однородности распыливания, которые форсунка может обеспечивать. Важным качеством является возможный предел регулирования форсунки, т.е. ее минимальная производительность, при которой сохраняется высокое качество распыливания.
В механических форсунках для распыливания мазута используется кинетическая энергия струи жидкого топлива, которое подается к форсункам специальным насосом под давлением от 1,0 до 3,5 МПа.
Недостатком механических форсунок является резкое ухудшение качества распыливания при снижении давления мазута до 1,0 - 1,2 МПа, что не позволяет снижать производительность форсунки более чем до 75-80 % от номинальной. Регулирование нагрузки котла с механическими форсунками производится поэтому отключением или включением различного количества горелок. Такой способ регулирования работы котла исключает возможность постоянного поддержания в топочной камере минимальных избытков воздуха, необходимых для предотвращения образования оксидов, определяющих скорость коррозии холодных конвективных поверхностей нагрева.
Паровые и пневматические форсунки. В паровых и пневматических форсунках дробление топлива осуществляется за счет кинетической энергии пара или воздуха. Основными показателями работы являются качество дробления и расход распыливающего агента на распыливание 1 кг топлива. Взаимодействие потоков топлива и распыливающего агента в форсунках этого типа осуществляется как внутри форсунки, так и за ней. Эффективность работы форсунок зависит от поверхности соприкосновения взаимодействующих потоков. Чем больше поверхность соприкосновения, тем эффективней работа форсунок (выше качество дробления, ниже удельный расход распыливающего агента).
Паромеханические и пневмомеханические форсунки.Устранение основного недостатка механических форсунок - малого диапазона регулирования производительности – достигается применением комбинированного паро- или пневмомеханического распыливания мазута. В последнее время получили распространение так называемые паромеханические форсунки, которые работают при умеренном давлении мазута 1,6 - 2,0 МПа. Обеспечение широкого диапазона регулирования такого типа форсунок (10 - 100 %) достигается сравнительно незначительным дополнительным расходом пара на распыливание (до 0,05 кг/кг мазута).
Ротационные форсунки.К комбинированным форсункам могут быть отнесены и ротационные форсунки.В ротационных форсунках дробление и подача топлива в топку осуществляются вращающимися элементами.
Горелочные устройства выполняются, как правило, комбинирован-ными, обеспечивающими сжигание как газа, так и мазута (раздельно или совместно) с применением форсунок различного типа. Это связано с тем, что обычно основным топливом является газ, а мазут – резервным.
Размещение форсунок, а также комбинированных газомазутных горелок в камерных топках может быть фронтальным, встречным и угловым. При сжигании распыленного жидкого топлива воздух в топочную камеру подают вместе с ним.
Сгорание мазута необходимо полностью завершить в пределах топочной камеры. При неблагоприятных условиях (нехватка воздуха, плохое перемешивание, низкая температура) из топки вместе с сажей могут выноситься капли неиспаренного мазута, которые будут откладываться на относительно холодных поверхностях нагрева парогенератора, снижая его экономичность.
Наряду с обычными камерными топками для эффективного сжигания мазута применяются и циклонные топки. В качестве примера на рис. 37 показана схема топочного устройства парогенератора ПК–41Ц паропроизводительностью 132 кг/с, с давлением пара 25 МПа, температурой перегретого пара 565/570 °С, оборудованного двумя вертикальными подовыми циклонами. Диаметр циклонной камеры и ее высота составляют 3880 мм, диаметр пережима (выходного сопла) 2340 мм.
Основное количество необходимого для горения воздуха (70 – 80 %) вводится в циклон со скоростью около 70 м/с через два вертикальных тангенциальных сопла. В каждом сопле установлены две мазутные механические форсунки производительностью по 1,25 кг/с при давлении мазута 2,85 МПа. Остальной воздух подается со скоростью 30 м/с через аксиально улиточный ввод. Предусмотрена также подача в улиточный ввод и дутьевые сопла газового топлива.
Длительная эксплуатация парогенератора показала высокую эффективность циклонного сжигания высокосернистого мазута. Сжигание мазута с коэффициентом избытка воздуха, близким к единице, позволило практически ликвидировать высокотемпературную газовую коррозию труб экранов и изменить характер натрубных отложений на конвективных поверхностях нагрева. Объемная плотность тепловыделения в циклонной камере около
= 3 МВт/м3, плотность теплового потока на сечении наклона
= 15 МВт/м2, в циклонной камере сгорает около 90 % вводимого мазута, остальные 10 % догорают после циклона в камере горения (до пережима в топке).

Рис. 37. Схема топочного устройства парогенератора ПК–41Ц с двумя
циклонными предтопками:
1 – тангенциальное сопло; 2 – шибер для регулирования скорости
воздуха; 3 – аксиальный улиточный ввод
Для циклонных топок наиболее целесообразно применение механических форсунок, дающих короткий факел с большим углом раскрытия. Хорошие результаты получены при расположении форсунок в дутьевых соплах (рис. 38). В этом случае воздух, выходящий из сопла со скоростью 70 - 120 м/с, способствует улучшению распыливания мазута. При таком расположении форсунок удается избежать отложения сажи на стенках циклонной камеры.
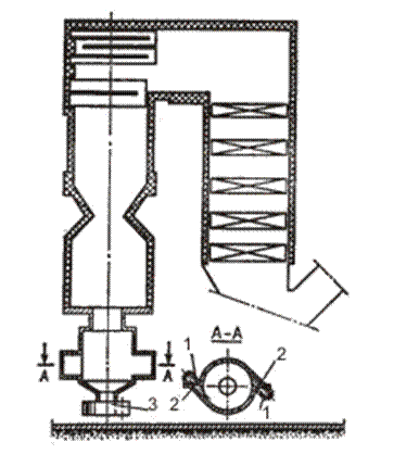
Для установок малой производительности интенсификация сжигания мазута может быть достигнута применением муфельного предтопка; один из вариантов его показан на рис. 39. Муфельный керамический предтопок обеспечивает эффективную предварительную тепловую подготовку мазута - частичную газификацию и лучшее смесеобразование. Раскаленные керамические стенки муфеля интенсифицируют испарение топлива, улучшают воспламенение газовой смеси. Горение мазута получается короткофакельным.

Рис. 38. Схема установки мазутных форсунок в дутьевых соплах

Рис. 39. Схема муфельного предтопка для интенсификации сжигания
мазута:
1 – форсунка; 2 – керамический муфель; 3 – фронтальная
стенка топки
Жидкое и газообразное топливо может применяться для котлов любой производительности.
Дата добавления: 2015-07-10; просмотров: 1834;
