Исходные данные к выполнению расчетно-графических работ
Пролет основного здания L1 (м)
-----------------------------------------------------
Отметка головки кранового рельса Н1 (м)
Таблица 1
| Последняя цифра шифра | Предпоследняя цифра шифра | |||||||||
| 18 | 24 | 30 8,4 | 36 | 42 | 18 | 24 | 30 | 36 | 42 | |
| 24 | 30 8,1 | 30 7,8 | 18 | 24 | 18 | 24 9,3 | 24 | 24 7,4 | 18 7,5 | |
| 30 | 18 | 42 | 36 5,5 | 18 3,6 | 30 5,8 | 42 4,9 | 24 4,7 | 18 6,9 | 24 | |
| 36 | 18 5,7 | 24 | 30 | 42 | 18 3,8 | 24 3,5 | 30 8,7 | 24 6,3 | 18 7,3 | |
| 42 | 18 | 24 | 30 | 36 | 42 7,9 | 18 3,8 | 24 | 36 10,3 | 42 | |
| 18 4,2 | 24 5,9 | 18 4,8 | 30 6,3 | 36 10,1 | 42 7,9 | 18 6,8 | 18 7,5 | 24 6,7 | 42 | |
| 18 10,2 | 18 8,4 | 24 5,3 | 24 6,9 | 24 7,1 | 18 4,8 | 30 9,3 | 30 10,4 | 18 8,2 | 18 3,8 | |
| 18 5,8 | 24 6,9 | 18 3,7 | 24 4,8 | 18 7,9 | 24 4,9 | 18 5,3 | 24 3,6 | 18 7,5 | 24 6,8 | |
| 24 7,9 | 18 5,5 | 18 7,3 | 24 7,1 | 24 5,8 | 18 5,3 | 18 5,7 | 18 6,9 | 24 6,7 | 18 5,8 | |
| 42 6,3 | 18 3,7 | 24 5,8 | 24 5,9 | 30 6,9 | 42 7,4 | 30 5,2 | 24 8,8 | 24 7,7 | 36 6,5 |
Пролет пристройки L2 (м)
----------------------------------
Высота пристройки h2 (м)
Таблица 2
| Последняя цифра шифра | Предпоследняя цифра шифра | |||||||||
| 9 | 8 | 9 | 9 | 12 | 14 | 9 | 12 | 15 | 9 | |
| 9 | 12 | 15 | 9 | 12 | 18 | 15 | 12 | 15 | 18 | |
| 12 | 18 | 10 | 12 | 18 | 15 | 12 | 9 | 18 | 9 | |
| 15 | 18 | 15 | 9 | 12 | 18 | 12 | 12 | 12 | 18 | |
| 12 | 18 | 15 | 12 | 9 | 14 | 18 | 12 | 12 | 15 | |
| 15 | 10 | 18 | 9 | 12 | 9 | 12 | 18 | 15 | 12 | |
| 16 | 16 | 9 | 12 | 25 | 18 | 11 | 12 | 18 | 15 | |
| 13 | 15 | 18 | 16 | 12 | 15 | 18 | 15 | 12 | 9 | |
| 17 | 18 | 18 | 16 | 12 | 16 | 18 | 15 | 12 | 9 | |
| 12 | 17 | 12 | 15 | 9 | 12 | 15 | 12 | 12 | 15 |
Таблица 3
| Послед- няя цифра шифра | Шаг колонн, м | Режим работы крана | Тип покры- тия | Место строитель- ства | Тип мест- ности | Тип стропильной фермы |
| 1К | Якутск | В | Из одиночных уголков | |||
| 2К | Нерюнгри | С | Из ГСП | |||
| 3К | Мирный | В | Из круглых труб | |||
| 4К | Магадан | А | С поясами из тавров | |||
| 5К | Алдан | С | С поясами из двутавров | |||
| 7К | Москва | А | Из спаренных уголков | |||
| 8К | Новосибирск | В | Из ГСП | |||
| 6К | Якутск | С | Малоэлементная | |||
| 4К | Нерюнгри | А | Малоэлементная | |||
| 5К | Красноярск | В | Из одиночных уголков |
Длина здания (В) принимается равной 4L, где L – пролет основного здания.
Таблица 4
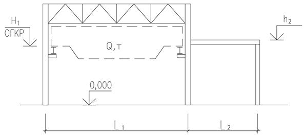
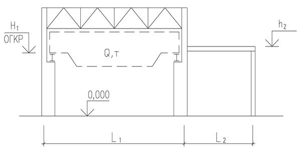
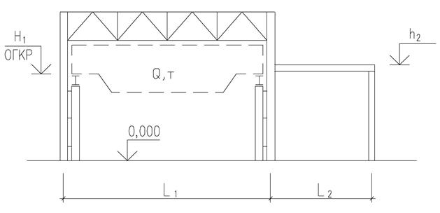
СХЕМА РАМЫ
----------------------------------
Грузоподъемность крана (тс)
| Последняя цифра шифра | Предпоследняя цифра шифра | |||||||||
| 1 | 2 | 3 | 1 | 2 | 3 | 1 | 2 | 3 | 1 | |
| 2 | 3 | 1 | 2 | 3 | 1 | 2 | 3 | 1 | 2 | |
| 3 | 1 | 2 | 3 | 1 | 2 | 3 | 1 | 2 | 3 | |
| 1 | 2 | 3 | 1 | 2 | 3 | 1 | 2 | 3 | 1 | |
| 2 | 3 | 1 | 2 | 3 | 1 | 2 | 3 | 1 | 2 | |
| 3 | 1 | 2 | 3 | 1 | 2 | 3 | 1 | 2 | 3 | |
| 1 | 2 | 3 | 1 | 2 | 3 | 1 | 2 | 3 | 1 | |
| 2 | 3 | 1 | 2 | 3 | 1 | 2 | 3 | 1 | 2 | |
| 3 | 1 | 2 | 3 | 1 | 2 | 3 | 1 | 2 | 3 | |
| 1 | 2 | 3 | 1 | 2 | 3 | 1 | 2 | 3 | 1 |
Схемы поперечных рам каркаса
Схема 1

Схема 2

Схема 3

Таблица 5
| № типа констр. | Состав конструкции покрытия | Вид теплоизоляции | Плотность γ, кг/м3 | Толщина утеплителя, мм |
| Плиты пенополистирольные ПСБ-С | |||
| 1 – гравий на антисепт. мастике δ=0,01м; | Плиты минераловатные повышенной жесткости | |||
| 2 – три слоя рубероида; | ||||
| 3 – теплоизоляция; | ||||
| 4 – рубероид, наклеен. на горячем битуме; | Плиты фенольные ФРП-1 | |||
| 5 – железобетонная плита δ=0,03м. | ||||
| Плиты фибролитовые | |||
| 1 – гравий на антисепт. мастике δ=0,01м; | Керамзитовый гравий | |||
| 2 – три слоя рубероида; | ||||
| 3 – цементно-песч. стяжка δ=0,02м; | ||||
| 4 – теплоизоляция; | Керамзитобетон | |||
| 5 – рубероид, наклеен. на горячем битуме; | ||||
| 6 – железобетонная плита δ=0,03м. | ||||
| Пенополиуретан заливочный | |||
| 1 – гравий на антисепт. мастике δ=0,022м; | Фенольный пенопласт заливочный | |||
| 2 – четыре слоя рубероида; | ||||
| 3 – мешочная бумага или слой рубероида; | ||||
| 4 – теплоизоляция; | ||||
| 5 – стальной профнастил | ||||
| Плиты минераловатные повышенной жесткости | |||
| 1 – гравий на антисепт. мастике δ=0,02м; | Плиты фенольные ФРП-1 | |||
| 2 – четыре слоя рубероида; | ||||
| 3 – теплоизоляция; | ||||
| 4 – рубероид, наклеен.на горячем битуме; | ||||
| 5 – стальной профнастил. |
Дата добавления: 2015-07-18; просмотров: 1052;
