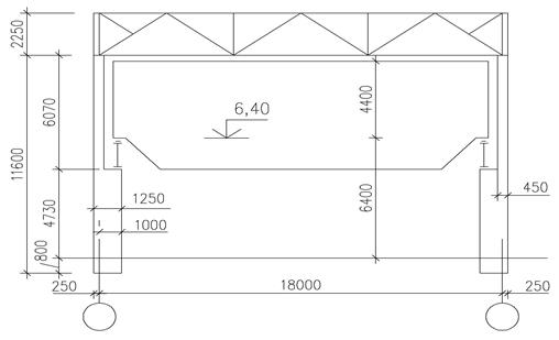
Пример 3. Исходные данные: схема 3; пролет 18 м; шаг колонн – 6 м;
Исходные данные: схема 3; пролет 18 м; шаг колонн – 6 м;
грузоподъемность крана – 125 т;
режим работы крана – 3К; отметка ГКР – 6,8м;
ферма малоэлементная.
Р Е Ш Е Н И Е
1. Параметры крана те же, что и в примерах 1 и 2.
2. Определим размеры по вертикали.
H2 = H cr
мм.
Примем
мм (кратно 200 мм).
м = 11200 мм.
3. Так как размер Ho должен быть кратен 600 мм, увеличим размер
на 200 мм. Тогда
м =11400 мм.
Полная высота здания до низа фермы
мм.
4. Для определения других размеров необходимо знать размеры малоэлементной фермы, для чего воспользуемся данными [6].

На рисунке видно, что для определения высоты верхней части колонны надо добавить
мм.
Высота основной колонны
мм;
высота примыкающей стойки
мм.
3. Определим размеры по горизонтали
Высота сечения основной колонны должна быть
мм.
Примем
мм.
Расстояние от оси колонны до оси подкрановой балки (как и до оси примыкающей стойки)
мм.
Примем
мм.
Высота сечения примыкающей стойки
мм. Примем
мм.
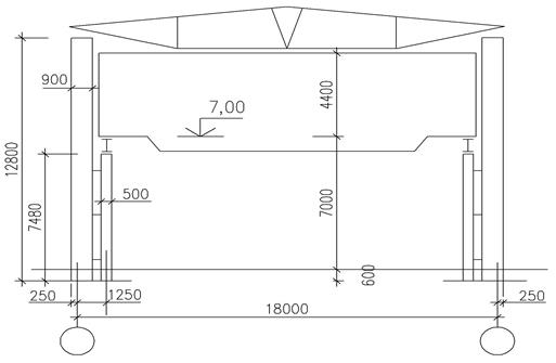
4. Чертеж скомпонованной рамы (рис. 1.3).

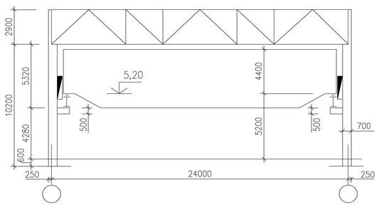
Рис. 1.1

Рис. 1.2

Рис. 1.3
Дата добавления: 2015-07-18; просмотров: 1508;
