Обладнання захисного заземлення
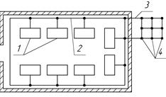
Для заземлення електроустановок використовуються природні заземлителі – металеві конструкції будівлі, фундаменти, що мають щільний контакт із землею. Штучні заземлителі виконуються з труб, стержнів, кутка і ін. прокату. Штучні заземлителі бувають групові і індивідуальні. Групове заземлення буває контурне (рис. 4.9.) і виносне (рис. 4.10.). Всі з'єднання повинні буути зварними, а до електроустаткування - болтовими. Розміщення заземлителів в землі показано на рис. 4.11 (розміри в мм).
Рис. 4.9. Схема групового контурного заземлення.
|
Рис. 4.10. Схема групового виносного заземлення.
|
| 1 – устаткування, що заземляється; 2, 3 – заземляючі провідники (магістралі); 4 – заземлителі. | |
Рис. 4.11. Схема розміщення заземлень в землі
|
Рис. 4.12. Схема занулення
|
Дата добавления: 2015-07-18; просмотров: 766;

Рис. 4.9. Схема групового контурного заземлення.
Рис. 4.10. Схема групового виносного заземлення.
Рис. 4.11. Схема розміщення заземлень в землі
Рис. 4.12. Схема занулення