Особенности деления мебели среди школьников разного возраста
| Ростова группа, см | Группа мебели и цвет маркировки | Класс | |||||||||||
| до 115 | 1 - оранжевый | + | |||||||||||
| 116-130 | 2 - фиолетовый | + | + | + | |||||||||
| 131-145 | 3 - желтый | + | + | + | + | + | |||||||
| 146-160 | 4 - красный | + | + | + | + | + | + | + | + | + | |||
| 161-175 | 5 - зеленый | + | + | + | + | + | + | ||||||
| Свыше 176 | 6 - голубой | + | + | + | + |
Размещать мебель в классных комнатах, которые имеют прямоугольную конфигурацию, необходимо таким образом, чтобы расстояние между внешней стеной и первым рядом парт составляло 0,6-0,7 м (в зданиях из кирпича допускается 0,5 м), между рядами двуместных парт (столов) - не менее 0,6 м, между третьим рядом парт (столов) и внутренней стеной или шкафами, которые расположены у стены, - не менее 0,7 м, между передней партой (столом) и демонстрационным столом - не менее 0,8 м. Расстояние от передней стены с классной доской к передним столам должно составлять не менее 2,4-2,6 м, от задних столов к задней стене - не меньше 0,65 м (в том случае, если задняя стена внешняя - не менее 1,0 м), от задних столов к шкафам, которые стоят вдоль заднего края стены - не менее 0,8 м, от демонстрационного стола к классной доске - не менее 1,0 м, между столом преподавателя и передним столом учеников - не менее 0,5 м. Наибольшее расстояние от последнего места до классной доски должно составлять 9 м, высота нижнего края доски над полом для учеников 1 класса должна составлять 0,7-0,8 м, для учеников 2-4 классов - 0,75-0,8 м, для учеников 5-12 классов - 0,8-0,9 м.
В классных комнатах, которые имеют поперечную или квадратную конфигурацию и отличаются расположением мебели в 4 ряда, должно быть увеличено расстояние от доски к первому ряду парт (не менее 3 м) для того, чтобы обеспечить угол обзора около 35°. Расстояние от первого ряда парт до внешней стене должно составлять 0,8-1,0 м, между рядами парт (столов) - 0,6 м, от задних парт к шкафам, расположенным у внутренней стены - 0,9-1,0 м.
Ученики со сниженной остротой зрения должны сидеть за первыми партами в первом ряду от светонесущей стены. Школьники со сниженным слухом размещаются за первой и второй партами боковых рядов. Ученики, которые часто и длительно болеют, размещаются в третьем (у внутренней стены) ряду парт.
Для профилактики нарушений осанки не меньше двух раз в год школьников необходимо пересаживать из первого ряда в третий, и наоборот, не нарушая соотношений групп мебели длине их тела и учитывая остроту зрения и слуха.
Школьная мебель должна быть промаркированной. Маркировка учебной мебели наносится в виде линии в ширину 2 см или круга диаметром 2,5 см на обеих сторонах парты, стола и стула. Мебель, которая относится к первой ростовой группе, метится оранжевым, ко второй - фиолетовым, к третьей - желтым, к четвертой - красным, к пятой - зеленым, к шестой - голубым цветами.
Кроме цветовой маркировки для повышения эффективности осуществления контроля за правильностью подбора определенной группы мебели на внутреннюю поверхность стола должна быть нанесенная цифровая маркировка в виде дроби:
2 (группа стола, стула)
115-130 (длина тела учеников)
В учебном помещении школьная мебель размещается таким образом, чтобы ближе к доске находились меньшие размеры, дальше от нее - большие.
Для определения необходимого конкретному ученику размера мебели в классной комнате на стене (двери) должна быть нанесена цветная измеримая вертикальная линейка: на высоте до 115 см наводится оранжевая полоса, на высоте от 115 до 130 см - фиолетовая, на высоте от 130 до 145 см - желтая, на высоте от 145 до 160 см - красная, на высоте от 160 до 175 см - зеленая, на высоте свыше 175 см - голубая.
Рабочие места в производственных мастерских школы должны обеспечивать правильную рабочую позу учеников и в полной мере отвечать требованиям техники безопасности.
Производственные мастерские должны быть рассчитаны на 13-15 рабочих мест, которые оборудованы станками. В мастерских по обработке древесины должно быть предусмотренное расположение станков высотой 75,5; 78,0 и 80,5 см; в мастерских по обработке металла - расположение станков высотой 87 и 95 см от пола к губкам тисков, оборудованных защитными экранами.
Каждое рабочее место следует обеспечить сидением на кронштейне или табуретами высотой 40-42 см и размером сидения 35 x 35 см и 40 x 40 см. Для подбора соответствующей мебели в мастерских должны быть размещенные подставки (по 5 подставок каждого размера) размером 55 x 75 см и высотой 5, 10 и 15 см соответственно.
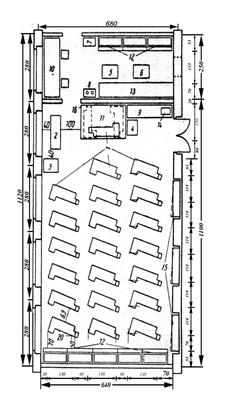
В мастерской по обработке древесины верстак следует размещать либо под углом 45°, либо в три ряда перпендикулярно к светонесущей стене. Расстояние между станками в передне-заднем направлении должно составлять не менее 0,8 м, между рядами - не менее 1,2 м (рис. 39.6).
В мастерской по обработке металла верстак необходимо размещать таким образом, чтобы свет на рабочее место падал спереди или справа. Расстояние между рядами должно составлять 1,0 м, расстояние от внутренней стены к станкам - не менее чем 0,8 м. Лучше всего размещать одноименные станки в шахматном порядке. Расстояние между тисками должно составлять не менее 1,0 м.

А б
Рис. 39.6. Особенности расположения учебного оборудования в производственных
мастерских для проведения трудового воспитания
(при расположении станков перпендикулярно (а) и под углом 45° к окнам (б))
1 – станки; 2 – токарный станок; 3 – сверлильный станок; 4, 7 – точило;
5 – дисковая пилка; 6 – место для хранения металлического реманента;
8 – место для варки клея, 9 – монтажный стол; 10 – стол; 11 – помост;
12 – секционные шкафы; 13 – стеллаж для пиломатериалов; 14 – раковина;
15 – встроенные шкафы; 16 – классная доска
В мастерских для учеников 10-12 лет следует использовать инструменты специального размера №1, для учеников 13-15 лет - инструменты специального размера №2, для учеников свыше 15 лет - инструменты для взрослых.
Максимальная масса груза для поднятия школьниками составляет в возрасте 11-12 лет - до 4 кг, в возрасте 13-14 лет - до 5 кг, в возрасте 15 лет: для мальчиков - 12 кг, для девочек - 6,0 кг, в возрасте 16 лет – соответственно 14 и 7 кг, в возрасте 17 лет - соответственно 16 и 8 кг
Следовательно, санитарная экспертиза правильности подбора и расстановки мебели в учебных помещениях должна предусматривать анализ наличия в каждом из них мебели не меньше 2-3 разных номеров и адекватности их взаиморасположения, характеристику расстояния между рядами мебели и между мебелью и боковыми, передней и задней стенами помещения, изучения условий обеспечения правильной рабочей позы и удобной посадки, измерения основных размеров учебной мебели и тому подобное.
Приложение 3
УЧЕБНАЯ ИНСТРУКЦИЯ
Дата добавления: 2016-01-03; просмотров: 1044;
