Идеальная и действительная подача поршневых насосов
Предположим, что поршень движется с некоторой средней скоростью. Тогда объем жидкости, вытесняемый поршнем в единицу времени, будет представлять собой идеальную подачу насоса (среднюю подачу).
Обозначим: площадь поршня - F, площадь сечения штока - f, длину хода поршня S,число двойных ходов поршня в единицу времени п. Представим характерные конструктивные схемы гидравлической части однопоршневых насосов с их идеальными подачами в таблице 6.1
Таблица 6.1
| Наименование насоса | Конструктивная схема | Объем, вытесняемый за ход | Подача в 1 с | Приме-чание | |
| Одно-поршневой одностороннего действия |
|
|
| ||
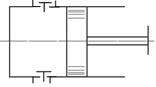
| Одно-поршневой дифференциаль-ного действия |
|
|
|
|
|
| Одно-поршневой двойного действия |
|
|
|
|
|
Из таблицы, 6.1 следует, что идеальная подача однопоршневых насосов равна
,
где V - объем рабочей камеры.
Для насоса одностороннего действия рабочая камера имеет объем
V=FS, а для насоса двухстороннего действия
.
Для многоцилиндрового насоса (число цилиндров - z), идеальная подача составит
.
Действительная подача насоса всегда меньше идеальной, подсчитанной без учета утечек жидкости через неплотности в цилиндре, несвоевременной работы клапанов, попадания воздуха вместе с перекачиваемой жидкостью и некоторыми другими причинами.
Чтобы учесть все эти факторы, вводится коэффициент подачи (иногда его называют объемным):
, 
где
- коэффициент утечек,
- коэффициент наполнения.
Величина коэффициента подачи зависит:
а) от запаздывания открытия и закрытия нагнетательных и всасывающих клапанов;
б) неплотности сальников, уплотняющих штоки, уплотнений поршней, клапанов;
в) несоответствия числа пар ходов насоса расчетным и монтажным данным (размерам клапанов, высоте всасывания и др.);
г) выделения паров при несоответствии давления всасывания и физических свойств жидкости, что ведет к уменьшению объема всасываемой жидкости.
Если первые три пункта ведут к снижению коэффициента утечек, то последний сильно влияет на коэффициент наполнения.
Коэффициенты подачи обычно находятся в пределах
(малые насосы – 0,85, большие - 0,9¸0,98), т.е. зависят от размеров гидравлической части насосов.
Дата добавления: 2015-07-10; просмотров: 977;
