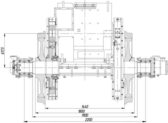
Блок колесно-моторный
На электровозе впервые применён колёсно-моторный блок с коническими моторно-осевыми подшипниками качения и двухсторонней косозубой передачей. Особенность конструкции КМБ состоит в применении единого жёсткого для двух моторно-осевых подшипников корпуса, обеспечивающего качественную регулировку подшипников при сборке, её стабильность в эксплуатации и обеспечивающего расчётную долговечность подшипников не менее 5 млн. км пробега. Вдвое повышен ресурс зубчатых колёс (до 1,8 млн. км пробега). Большое зубчатое колесо выполняется составным, венец изготавливается из стали 45 ХН с контурной закалкой ТВЧ.
|
| Рисунок 2.4 - Блок колесно-моторный. |
Колесно-моторный блок включает в себя колесную пару, кожух зубчатой передачи, шестерни и тяговый двигатель типа ЭДП810 с опорно-осевым подвешиванием через моторно-осевые подшипники качения. Основные размеры представлены на рисунке 2.4.
Дата добавления: 2015-08-04; просмотров: 2224;
