Расчет плиты проезжей части на временную нагрузку
Плита проезжей части рассчитывается на воздействие колеса от нагрузки НК-80, от воздействия колеса А-11 и от воздействия двух колес А-11.
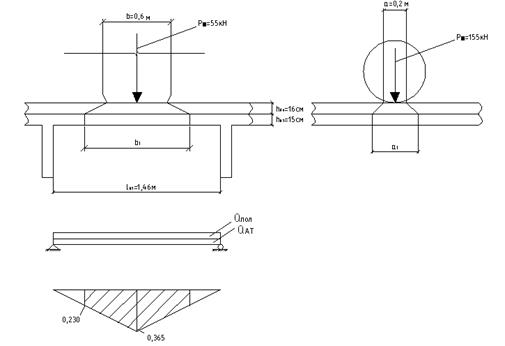
I Нагрузка НК-80
Поставим одно колесо в самое невыгодное положение - в середину пролета
Плита проезжей части рассчитывается на воздействие колеса от нагрузки НК-80. Давление от колес временной нагрузки считают передающимся через покрытие проезжей части под углом 45 градусов.
На поверхность ж/б плиты давление передается на прямоугольную площадку размером a1 х b1.
Определяем размеры площадки:
вдоль 
поперек 

Значение распределенной нагрузки определяется по формуле: 
Определяем площадь эпюры моментов по формуле:

Определим величину изгибающего момента в середине пролёта плиты от нагрузки НК-80. Для расчётного момента необходимо принять динамический коэффициент и коэффициент надёжности по нагрузке для НК-80.
Динамический коэффициент принимается согласно СНиП 2.05.03-84 (“Мосты и трубы” п 2.22 3) при lпл >5,0 м: (1+μ)нк=1,3; где lпл=1,46- длина расчетного пролета.
Коэффициент надежности принимается согласно СНиП 2.05.03-84 “Мосты и трубы” п 2.22 в) для нагрузки НК-80 γfнк=1.
Вычислим расчётную нагрузку в середине пролёта от НК-80: 
Вычислим нормативную нагрузку в середине пролёта от НК-80: 
II Нагрузка А-11 (1 случай)
Расчет плиты проезжей части на воздействие одного колеса нагрузки А-11. Колесо нагрузки установлено в середине пролета. Определяем размеры площадки передачи давления от нагрузки А-11:
вдоль 
поперек 

Распределенная нагрузка от воздействия нагрузки А-11 делится на распределенную полосовую нагрузку qп=11 кН/м на одну клею и колесную нагрузку от тележки РAT=55 кН.
Интенсивность распределенной полосовой нагрузки определяется по формуле: 
Интенсивность давления одного колеса тележки нагрузки А-11:

Определяем площадь эпюры моментов по формуле:

Для расчётного момента необходимо принять динамический коэффициент и коэффициент надёжности по нагрузке для А-11.
Динамический коэффициент и коэффициент надежности для нагрузки А-11 принимаем согласно СНиП 2.05.03-84 ("Мосты и трубы". п 2.22 б) для автодорожных и городских мостов

Коэффициент надежности принимается согласно СНиП 2.05.03-84 (“Мосты и трубы” п 2.23 таблица 14) γfА=1,2 -коэффициент надежности для тележке; γfАТ=1,5 -коэффициент надежности для распределенной нагрузки
Вычислим расчётный момент от одного колеса нагрузки А-11 в середине пролёта:

Вычислим нормативный момент от одного колеса нагрузки А-11 в середине пролёта:

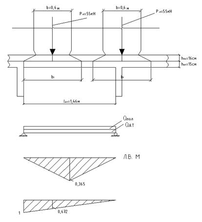
III Нагрузка А-11 (2 случай)
Расчет плиты проезжей части на воздействие двух колес нагрузки А-11. При большом пролете плиты расчетным значением может быть загружение плиты двумя колесами
Определяем размеры площадки:
вдоль 
поперек 
Интенсивность распределенной полосовой нагрузки определяется по формуле: 
Интенсивность давления одного колеса тележки нагрузки А-11:


Определяем площадь эпюры моментов по формуле:

Расчётный момент от двух колес нагрузки А-11:

Нормативный момент от двух колес нагрузки А-11: 
Определим суммарный расчётный момент в середине пролёта плиты: 


Выбираем наибольший момент: 37,09 кН·м – расчётный момент.
Определим суммарный нормативный момент в середине пролёта плиты: 


Выбираем наибольший момент: 23 кН·м – нормативный момент.
С учетом защемления ж/б плиты в ребрах приближенно принимаем итоговые изгибающие моменты:
момент опоры


момент пролёта


Определим перерезывающую силу в опорном сечении

Определяем перерезывающую силу у опорного сечения от воздействия одного колеса нагрузки НК-80 и постоянной нагрузки

Определим перерезывающую силу в опорном сечении от двух колес нагрузки А-11 и постоянной нагрузки:

Дата добавления: 2015-08-01; просмотров: 2057;
