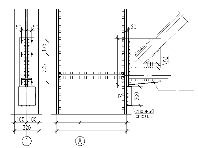
Нижний опорный узел
Определяем размеры швов для прикрепления нижнего пояса.
.
Для тавра 20БТ1 
Находим:


Конструктивно принимаем 
Длина опорного столика определяется из условия прочности сварного шва на действие N=1.5Fф, где
– опорная реакция от вертикальных нагрузок на нём.
.
Для сварки принимаем проволоку Св-08Г2С d=1.4…..2мм.

Несущая способность шва определяется на границе сплавления основного металла и шва.ффф
Принимаем 

Прочность шва Ш2 проверяется по формуле:




.

Рисунок. 10. Нижний опорный узел
Дата добавления: 2015-07-30; просмотров: 798;
