Конструкция сборных железобетонных крыш.
Железобетонные полносборные конструкции крыш проектируют с уклоном до 5%. Применяют три типа конструкций крыш: чердачные, бесчердачные и эксплуатируемые.
Чердачная крыша - основной вариант покрытия в жилых зданиях массового строительства повышенной этажности.
Бесчердачная крыша - основной тип покрытия в малоэтажных массовых общественных зданиях. Бесчердачную крышу применяют также в жилых домах высотою до четырех этажей при строительстве в умеренном климате, а также на ограниченных по площади участках покрытий многоэтажных зданий: над машинными отделениями лифтов, над лоджиями и эркерами, пристроенными магазинами, вестибюлями, тамбурами и пр. В свою очередь чердачные крыши применяют и в многоэтажных общественных зданиях, когда их планировочные параметры совпадают с параметрами жилых зданий, что позволяет применить соответствующие им сборные изделия для крыш.
Эксплуатируемая крыша устраивается и над чердачными, и над бесчердачными покрытиями. Она может быть устроена над всем зданием или его частью и использоваться в рекреационных целях как для населения (или служащих) в здании, либо независимо, например, для устройства открытого кафе.
Окончательный выбор системы водоотвода с крыши при проектировании осуществляют в зависимости от назначения объекта, его этажности и размещения в застройке. В жилых зданиях средней и повышенной этажности принимают внутренний водоотвод, в малоэтажных - наружный организованный, а в малоэтажных, размещенных внутри квартала, - наружный неорганизованный.
При внутреннем водостоке в жилых домах предусматривают по одной водоприемной воронке на планировочную секцию, но не менее двух на здание. При наружном организованном водостоке расстояние между водосточными трубами по фасаду должно быть не больше 20 м, а их сечение принимают не менее 1,5 см2 на 1 м2 площади крыши.
Гидроизоляцию железобетонных крыш проектируют в зависимости от типа крыши. Для бесчердачных крыш (за исключением крыш раздельной конструкции) применяют многослойные гидроизоляционные рулонные покрытия. Гидроизоляцию чердачных и раздельных бесчердачных крыш осуществляют одним из следующих трех способов. Первый (традиционный) - устройство многослойного рулонного ковра, второй - окраска гидроизоляционными мастиками (например, кремнийорганическими), которые совместно с водонепроницаемым бетоном кровельной панели обеспечивают защитные функции покрытия, третий - применение предварительно напряженных кровельных панелей, отформованных из бетонов высоких классов по прочности и марок по водонепроницаемости, обеспечивающих гидроизоляцию крыши. Этот вариант гидроизоляции является экспериментальным.
Соответственно принятому способу гидроизоляции меняются требования к физико-техническим характеристикам бетонов для кровельных панелей (табл.1).
Таблица 1. Минимально допустимые значения показателей свойств бетонов
кровельных панелей

По методу удаления воздуха из системы вытяжной вентиляции через конструкцию покрытия различают крыши с холодным, теплым и открытым чердаком. Для каждой из этих конструкций может быть применен любой из выше перечисленных методов гидроизоляции.
Конструкции чердачных крыш применяют в строительстве в следующих шести основных вариантах (рис.1):
А - с холодным чердаком и рулонной кровлей;
Б - то же, с безрулонной кровлей;
В - с теплым чердаком и рулонной кровлей;
Г - то же, с безрулонной кровлей;
Д - с открытым чердаком и рулонной кровлей;
Е - то же, с безрулонной.
Конструкции бесчердачных крыш применяют в строительстве в следующих пяти вариантах (рис. 2):
Ж - раздельной (с кровельной панелью, чердачным перекрытием, утеплителем и вентилируемым пространством) с безрулонным покрытием;
И - то же, с рулонным покрытием;
К - совмещенной однослойной панельной конструкции;
Л - совмещенной трехслойной панельной конструкции;
М - совмещенной многослойной построечного изготовления.
При проектировании тип конструкции покрытия выбирают в соответствии с назначением здания, его этажностью и климатическими условиями района строительства по рекомендациям табл. 2.
|
Таблица 2. Конструкции железобетонных крыш и их уклоны в зависимости от типа здания и климатических условий района строительства

Рис. 1. Схемы конструкций чердачных крыш:А, Б - с холодным чердаком с рулонной (А) и безрулонной (Б) кровлей; В, Г - с теплым чердаком с рулонной (В) и безрулонной (Г) кровлей; Д, Е - с открытым чердаком с рулонной (Д) и безрулонной (Е) кровлей; 1 - опорный элемент; 2 - плита чердачного перекрытия; 3 - утеплитель; 4 - неутепленная кровельная плита; 5 - рулонный ковер; 6 - водосборный лоток; 7 - опорная рама; 8 - защитный слой; 9 - пароизоляционный слой; 10 - полоса рубероида; 11 - опорный элемент фризовой панели; 12 - кровельная плита безрулонной крыши; 13 - гидроизоляционный слой из мастичных или окрасочных составов; 14 - П-образная плита - нащельник; 15 - водосточная воронка; 16 - вентиляционный блок (шахта); 17 - оголовок вентиляционного блока; 18 - легкобетонная однослойная кровельная плита; 19 - машинное отделение лифта; 20 - легкобетонная плита лотка; 21 - двухслойная кровельная плита; 22 - неутепленная фризовая панель; 23 - утепленная фризовая панель
|
Рис. 2. Принципиальные схемы конструкций бесчердачных железобетонных крыш:
Ж - раздельной конструкции с рулонной кровлей;
И - раздельной конструкции (с безрулонной кровлей);
К - совмещенной панельной однослойной конструкции;
Л - то же, трехслойной;
М - то же, построечного изготовления;
1 - панель чердачного перекрытия;
2 - утеплитель;3 - фризовая панель;
4 - кровельная панель безрулонной крыши;
5 -опорный элемент; 6 - однослойная легкобетонная кровельная панель;
7 - рулонный ковер; 8 - трехслойная кровельная панель; 9 - цементная стяжка;
10 - слой керамзита по уклону;
11 - слой прокладочного рубероида на мастике.
Конструкцию чердачных крыш составляют панели покрытия (кровельные панели и лотки, чердачное перекрытие, опорные конструкции под лотки и кровельные панели, наружные фризовые элементы. Высота сквозного прохода в чердачном пространстве должна составлять не менее 1,6 м. Допускаются местные понижения до 1,2 м вне сквозного прохода.
Чердачные крышис холодным и открытым чердаком (типы конструкций А, Б, Д, Е) содержат в своем составе утепленное чердачное покрытие, неутепленные тонкостенные ребристые железобетонные кровельные, лотковые и фризовые панели, в которых предусматривают отверстия для вентиляции чердачного пространства. Площадь вентиляционных отверстий по каждой продольной стороне фасада назначают в I и II климатических районах в 1/500 от площади чердака, в III и IV районах - в 1/50.
Размеры приточных и вытяжных отверстий во фризовых панелях открытых чердаков принимают существенно большими по результатам теплотехнического расчета, по зимним и летним условиям эксплуатации.
Вентиляционные каналы пересекают крыши с холодным чердаком, что должно учитываться при раскладке панелей чердачного перекрытия и покрытия.
Конструкции крыш с теплым чердаком (типы В и Г) составляют утепленные кровельные, лотковые и фризовые панели, неутепленное чердачное перекрытие и опорные конструкции кровельных и лотковых панелей. Поскольку теплый чердак служит возду-хосборной камерой системы вытяжной вентиляции здания, вентиляционные блоки нижележащих этажей завершаются в чердачном пространстве оголовком высотой в 0,6 м, не пересекая крышу. Фризовые панели проектируют глухими (без вентиляционных отверстий). Эти панели на отдельных участках могут быть решены свегопрозрачными (для естественного освещения чердака), но не створными. В центральной зоне теплого чердака устраивают общую вытяжную шахту (одну на планировочную секцию) высотой 4,5 м от верхней плоскости чердачного перекрытия.
Конструкции крыш с открытым чердаком (типы Д и Е) по составу конструктивных элементов аналогичны конструкциям с холодным чердаком, но вентиляционные конструкции ее не пересекают, обрываясь на высоте 0,6 м от поверхности чердачного перекрытия, как в крышах с теплым чердаком.
Удалению вытяжного воздуха наряду с общей шахтой способствует интенсивное горизонтальное проветривание через увеличенные вентиляционные отверстия во фризовых панелях.
Своеобразным архитектурным вариантом конструкций железобетонных чердачных крыш многоэтажных зданий стали крыши с наклонными фризовыми панелями и вертикальными фризовыми панелями щипцовой формы, перекликающиеся с традиционными формами мансардных крыш. Этот вариант может быть применен и при холодных, и при теплых чердачных крышах (рис. 10.3). Фасадный отделочный слой крутоуклонных фризовых панелей может быть аналогичен примененному для наружных стен (декоративный бетон или облицовочная плитка) либо выполнен из кровельных материалов - глиняная, цементная или металлочерепица.
Конструкция раздельной бесчердачной крыши (тип И) содержит те же конструктивные элементы, что и чердачная крыша с холодным чердаком, но в связи с тем, что ее воздушное пространство имеет малую высоту (до 0,6 м), решение опорных конструкций упрощено.
Кровельные панели безрулонных крыш с холодным и открытым чердаком, а также раздельных бесчердачных крыш решены одинаково. Это тонкостенные (толщина плиты 40 мм) ребристые железобетонные плиты. Стыковые грани панелей и их примыканий к пересекающим крышу вертикальным конструкциям (лифтовым шахтам, вентиляционным блокам и пр.) снабжены ребрами высотой в 100 мм. Стыки защищены нащельни-ками (или сопряжены внахлестку) и герметизированы.
Водосборные корытообразные лотки выполняют из водонепроницаемого бетона с толщиной днища 80 мм и высотой ребер 350 мм, шириной не менее 900 мм.
Кровельные панели и лотки крыш с теплым чердаком проектируют двух- или трехслойными. Верхний слой выполняют из морозостойкого бетона толщиной не менее 40 мм. Для утепляющего слоя двухслойных панелей применяют легкие бетоны плотностью 800-1200 кг/м3 класса В 3,5-В7,5, для трехслойных — эффективные утеплители плотностью менее 300 кг/м3.
|
При безрулонных крышах утепленные кровельные панели имеют продольные краевые ребра для устройства сопряжений внахлестку или с нащельниками.
|
Рис. 3. Чердачные железобетонные крыши:
А - схемы поперечного разреза крыш с теплым чердаком с вертикальным фризом (а); с крутоскатным фризом (б); Б - детали устройства наклонного фриза; в, г -при холодном чердаке; д -то же, при теплом; 1 - холодная фризовая панель; 2 -то же, кровельная; 3 - железобетонная балка; 4 - железобетонная рама; 5 - утепленная фризовая панель; 6 -то же, кровельная; 7 - опорная конструкция фризовой панели

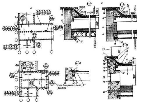
Рис. 4. Конструкция чердачной крыши с холодным чердаком и кровлей из рулонных материалов (тип А):
А - схема-план крыши; 1 - вентиляционный блок; 2 - водосточная воронка; 3 - панель чердачного перекрытия; 4 - фризовая панель; 5 - опорный элемент фризовой панели; 6 - утеплитель; 7 -опорная рама; 8 - лотковая панель; 9 - ребристая железобетонная кровельная панель; 10 -основная кровля; 11 -дополнительные слои рубероида на битумной мастике; 12 - защитный фартук из оцинкованной кровельной стали; 13 - минераловатные маты

Рис.5. Узлы 2-4 сопряжений конструкций рулонной крышн с холодным чердаком (тип А): А - вариант решения карнизного узла с решетчатым ограждением; Б - то же, с парапетом; 1 - фризовая панель; 2 цементно-песчаный раствор; 3 - анкерный выпуск; 4 - кровельные костыли через 600 мм пристрелены дюбелями; 5 - оцинкованная кровельная сталь; 6 - стойка ограждения; 7 - дополнительные два слоя рубероида на битумной мастике; 8 - основная кровля; 9 - ребристая железобетонная кровельная панель; 10 - бетонный бортовой камень; 11 - защитный фартук из оцинкованной кровельной стали; 12 - скользящая полоса рулонного материала; 13 - маты минераловатные; 14 - полоса из рулонного материала с односторонней приклейкой на ширину 50 мм; 15 - опорная рама; 16 - закладная деталь; 17 - монтажный соединительный элемент; 18 -лотковая панель; 19 - водосточная воронка; 20 - заливка герметизирующей мастикой; 21 - труба спускная водосточной воронки
Бесчердачные совмещенные крыши однослойной конструкции проектируют панельными из легкого бетона или из автоклавного ячеистого бетона (конструкция типа К). Легкий бетон кровельных панелей плотностью до 1200 кг/м2, ячеистый бетон -800 кг/м2. В панелях предусматривают цилиндрические вентиляционные каналы в подкровельном слое. Кровля - рулонная четырехслойная, причем первый слой гидроизоляции выполняют в заводских условиях во избежание увлажнения конструкции при транспортировании, складировании и монтаже.
Трехслойные панели совмещенных бесчердачных крыш (тип Л) изготовляют в едином технологическом цикле или комплектуют на заводе из двух тонкостенных ребристых плит и утеплителя между ними.
Совмещенные крыши построечного изготовления (тип М) возводят путем последовательной укладки на постройке по перекрытию верхнего этажа пароизоляционного слоя, отсыпки по уклону, теплоизоляционного слоя, выравнивающей стяжки и многослойного гидроизоляционного рулонного ковра. Конструкция М наиболее трудоемка и отличается наихудшими эксплуатационными качествами. Ее применение по возможности следует предельно ограничивать.

Рис.6. Безрулонная крыша с холодным чердаком (тип Б): А, Б - схемы поперечных сечений чердака при внутреннем и наружном водоотводе; В - сборного элемента водосборного лотка; Г - то же, кровельных панелей для крыш с внутренним; Д - то же, с наружным неорганизованным водоотводом ; 1 - фризовая панель; 2 - опорный элемент фризовой панели; 3 - решетчатое ограждение крыши; 4 - фризовая панель торцевой стены; 5 - кровельная панель; 6 - нащельник; 7 - водосборный лоток; 8 - водосборная воронка; 9 -опорная балка; 10 - чердачное перекрытие; 11 - опорный столбик; 12 - опорный элемент лотка; 13 - сливное отверстие; 14 - монтажные петли
При устройстве кровли из 3-, 4-слойного ковра принимают комплекс конструктивных мер по повышению его долговечности и надежности. Применяют точечную (или полосовую) наклейку нижнего слоя и бронированный рубероид - для верхнего слоя. Точечная наклейка способствует равномерному распределению давления водяного пара под ковром, исключая образование вздутий и разрывов; бронирование покрытия гравием светлых тонов повышает светоотражение кровли, уменьшает ее радиационный перегрев, что препятствует старению и вытеканию мастики. Места сопряжения кровли с выступающими вертикальными конструкциями (парапетами и пр.) изолируют, заводя ковер на эти поверхности с защитой его верхней кромки водоотводящими металлическими или пластмассовыми фартуками. Переход ковра на вертикальную плоскость проектируют плавным с устройством в основании ковра откосов из монолитной стяжки или установкой сборных брусков трапециевидного сечения.
Дополнительной страховкой изоляции этих мест служит обязательная установка в местах перехода ковра на вертикалиную плоскость двух дополнительных слоев рубероида.

Рис. 7. Безрулонная крыша с холодным чердаком и внутренним водоотводом (тип Б):
А - схема-план крыши; 1 - кровельная панель; 2 - водосточная воронка; 3 - вентиляционный блок; 4 - панель чердачного перекрытия; 5 - опорный элемент фризовый панели; 6 - лотковая панель; 7 - П-образная плита - нащель-ник; 8 - утеплитель; 9 - железобетонная опорная рама; 10 - цементно-песчаный раствор; 11 - герметик; 12 -оголовок вентиляционного блока

Рис. 8. Узлы сопряжений безрулонной крыши с холодным чердаком (тип Б):
А - варианты сопряжений крыши с торцевой наружной стеной; Б - варианты продольных стыков кровельных панелей; В - варианты конструкций сопряжений вентиляционных шахт с крышей; 1 - панель наружной стены; 2 - фризовая панель торцевой стены; 3 - парапетная плита; 4 - фартук из оцинкованной стали; 5 - кровельная панель; 6 -опорный элемент фризовой панели; 7 - полоса рубероида; 8 - утеплитель; 9 - плита чердачного перекрытия; Ю - Г-образный парапетный элемент; И - вентиляционная шахта; 12 - нащельник; 13 - герметик; 14 - цементный раствор; 15 - водосборный лоток; 16 - опорный элемент лотка

Рис. 9. Варианты узлов сопряжений конструкций безрулонной крыши с холодным чердаком (типБ):
А,Б - варианты конструкции ограждения крыши; В, Г, - варианты конструкции деформационного шва; 1 - кровельная панель; 2 - анкерный выпуск; 3 - стойка ограждения; 4 - П-образная плита - нащельник; 5 -гидроизоляция мастичными или окрасочными составами; 6 - цементно-песчаный раствор; 7 - фризовая панель; 8 - герметик; 9 - кровельные костыли шагом 600 мм; 10 - оцинкованная кровельная сталь; 11 - защитный фартук из оцинкованной стали; 12 - закладная деталь; 13 - стальной соединительный элемент; 14 - лотковая панель; 15 - водосточная воронка; 16 - уплотняющая прокладка из пористой резины; 17 - зажимный хомут воронки; 18- маты минераловатные прошивные; 19- труба спускная водосточной воронки; 20 - мастика изоляционная битумно-резиновая; 21 - шпилька; 22 - металлическая шайба; 23 - стальная полоса; 24 - компенсатор из оцинкованной кровельной стали; 25 - внутренние панели чердака.

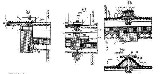
Рис. 10. Рулонная крыша с теплым чердаком (тип В):
А - схема-план крыши, 2 - водосточная воронка; 3 - опорный элемент фризовой панели; 4 - фризовая панель; 5 - кровельная панель; 6 - лотковая панель; 7 - опорная рама; 8 - вентиляционная труба; 9 - утепляющий вкладыш; 10 - основная кровля; 11 - скользящая полоса рулонного материала; 12 - цементно-песчаный раствор
|
Рис.10.11. Узлы сопряжений конструкций рулонной крышн с теплым чердаком (тнп В):А,
Б - варианты конструкции ограждения крыши; 1 -фризовая панель; 2 - утепляющий вкладыш; 3 - анкерный выпуск; 4 - кровельные костыли шагом 600 мм; 5 - оцинкованная кровельная сталь; 6 - стойка ограждения; 7 - три дополнительных слоя рубероида; 8 - основная кровля; 9 - бетонный бортовой камень; 10 - цементно-песчаный раствор; 11 - защитный фартук из оцинкованной кровельной стали;
12 – кровельная панель; - кровельная панель;
13 - скользящая полоса рулонного материала; - скользящая поло14 -
14 - опорная рама; 15 - лотковая панель; 16 - два дополнительных слоя кровли из мастик, армированных стекло-сеткой или стеклотканью; 17 - заливка битумной мастикой; 18 - чаша водосточной воронки; 19 - струевыпря-митель; 20 - гильза из асбестоцементной трубы d=150 мм; 21 - резиновая прокладка; 22 - зажимной хомут; 23 - труба спускная водосточной воронки; 24 - заливка герметизирующей мастикой; 25 - вентиляционная шахта; 26 - пакля, смоченная в горячем битуме на глубину 50 мм; 27 - зонт из оцинкованной кровельной стали; 28 - стальной патрубок с фланцем; 29 - плита чердачного перекрытия

Рис. 12. Безрулонная крыша с теплым чердаком (тип Г):
А - схема-план, крыши: 1 - двухслойная теплая безрулонная кровельная панель; 2 - вытяжная шахта; 3 - защитный зонт; 4 - двухслойная лотковая панель; 5 - фризовая панель; 6 - оголовок вентиляционной шахты: 7 - опорный элемент лотковой панели; 8 -стояк внутреннего водостока; 9 - водосборный лоток; 10 - трехслойная кровельная панель; 11 - то же, панель лотка; 12 - панель чердачного перекрытия; 13 - бетонный нащельник; 14 - герметизирующая мастика; 15 -утеплитель; 16 - бетонная шпонка.
|
Рис.13. Узлы сопряжений конструкций безрулонной крышн с теплым чердаком (тип Г):
1- фризовая панель; 2 - гернит; 3 - герметизирующая мастика; 4 - бетонный парапет; 5 - утеплитель; 6 - трехслойная кровельная панель; 7 - цементно-песчаный раствор; 8 - двухслойная кровельная панель; 9 - П-образный бетонный нащельник; 10 - лотковая трехслойная панель; 11 - лотковая двухслойная панель

Рис. 14. Схемы планов бесчердачных крыш типов "И", "К", "М". Узлы бесчердачнои вентилируемой крыши типа "И":
а - с внутренним водоотводом; б - то же, с наружным водоотводом; Б - парапетные узлы крыши; узел И-1а - примыкание кровли и перекрытия к наружной несущей стене; И-1б-то же, к наружной ненесущей стене; И-2а- к стене кирпичной кладки; И-2б-к стене из крупных блоков; 1 - многопустотная панель перекрытия; 2 - слой прокладочного рубероида на битумной мастике; 3 - плитный утеплитель; 4 - из-вестково-песчаная корка; 5 - вентилируемая воздушная прослойка; 6 - кровельная панель; 7 - три слоя прокладочного рубероида; 8 - слой кровельного рубероида; 9 - защитный слой из мелкого щебня 20-25 мм; 10 -цементно-песчаный раствор; И - наружная стена из кирпичной кладки; 12 - наружная ненесущая стена; 13 -вентиляционный продух; 14 - бетонная парапетная плита; 15 - бетонный бортовой камень; 16 - два дополнительных слоя рубероида; 17 - защитная покраска водоизоляционным составом; 18 - войлок минераловатный; 19 - подъемная петля, отогнутая и приваренная к закладной детали парапетного блока; 20 - блоки наружной несущей стены; 21 - кровельная оцинкованная сталь; 22 - решетка вентиляционного продуха; 23 - актисептированная деревянная пробка; 24 - анкерная труба ограждения; 25 - стойка ограждения; 26 - антисептированная деревянная рейка 66x80 мм
|
Рис. 15. Бесчердачная вентилируемая крыша типа "Г": Узлы И-3, И-4 и И-5: 1 - наружная стена; 2 - цементно-песчаный раствор; 3 - решетка вентиляционного продуха; 4 - карнизная плита; 5 - кровельный костыль; 6 - кровельная оцинкованная сталь; 7 - два дополнительных слоя рубероида; 8 - плоская асбоцементная плита; 9 - многопустотная панель перекрытия; 10 - слой прокладочного рубероида; 11 - плитный утеплитель; 12 - известково-песчаная корка; 13 - вентилируемая воздушная прослойка; 14 - кровельная панель; 15 - три слоя прокладочного рубероида; 16 - слой кровельного рубероида; 17 - защитный слой гравия 20 - 25 мм; 18 - кирпичная стенка; 19 - минераловатный войлок; 20 - фартук из кровельной оцинкованной стали; 21 - антисептированная деревянная пробка; 22 - антисептированная деревянная доска сечением 120x50 мм; 23 - верхний компенсатор из кровельной оцинкованной стали; 24 - внутренние поперечные стены; 25 - нижний компенсатор из кровельной оцинкованной стали, пристрелянный дюбелями через 300 мм; 26 - дюбели; 27 - парапетная плита; 28 - бетонный бортовой камень; 29 - защитная покраска водоизоляционным составом
|
|
|
Рис. 16. Бесчердачная крыша из легкобетонных панелей типа "К":Узлы К-1, К-2, К-3, К-4 и К-5; 1 - легкобетонная панель покрытия; 2 - наружная стена; 3 - минераловатный войлок; 4 - бортовой бетонный камень; 5 - три слоя прокладочного рубероида; 6 - слой бронированного рубероида; 7 - два дополнительных слоя рубероида; 8 - парапетная плита; 9 - защитный слой мелкого гравия 20-25 мм; 10 - фартук из кровельной оцинкованной стали; 11 - верхний компенсатор из кровельной оцинкованной стали; 12 - антисептированная деревянная доска; 13 - антисептированная деревянная пробка; 14 - кирпичная стенка; 15 - внутренние стены; 16 - нижний компенсатор из кровельной оцинкованной стали; 17 - вентиляционный канал; 18 - кровельный костыль; 19 - кровельная оцинкованная сталь.


Рис.10.19. Бесчердачная невентилируемая крыша типа М:
узлы М-5а - М-8; 1 - кирпичная стена; 2 - цементно-песчаный раствор; 3 - многопустотная железобетонная панель; 4 - слой прокладочного рубероида на битумной мастике; 5 - слой керамзитового щебня или шлака для создания уклона кровли; 6 - плитный утеплитель; 7 - цементно-песчаная стяжка; 8 - три слоя прокладочного рубероида на битумной мастике; 9 -слой бронированного рубероида; 10 - защитный слой из мелкого гравия 20-25 мм; 11 - мастичный водоизоля-ционный ковер, армированный стеклохолстом; 12 - три дополнительных слоя рубероида; 13 - три дополнительных мастичных слоя армированных двумя слоями стеклохолста; 14 - фартук из кровельной оцинкованной стали; 15 - антисептированная рейка по всей длине; 16 - минераловатный войлок; 17 - подоконная доска; 18 - антисептированная деревянная пробка; 19 - мастика; 20 - компенсатор из кровельной оцинкованной стали; 21 - антисептированная деревянная доска 19x150 мм по всей длине; 22 - кровельная оцинкованная сталь; 23 – дюбели.
Дата добавления: 2015-06-12; просмотров: 3182;
